行业动态
小小一张平面图,生产加工真不能少(下)
- 作者:
- 发布时间:2026-02-09 10:05:38
- 点击:
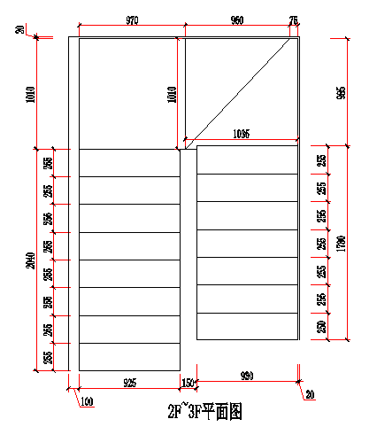
2.11楼梯平面图
楼梯平面图有直楼梯平面图和旋转楼梯平面图两种,两者有较大的差别的。
2.11.1直楼梯平面图
直楼梯平面图有楼梯总图、楼梯拆分图、楼梯分件图。
楼梯平面图构成要素:楼梯板的外形形状、楼梯板的拼接关系、楼梯板的总尺寸、各部分的尺寸、分割线、石材名称或编号、产品分件编号、磨边线型符号、尺寸及尺寸标注线、楼梯板的开异型口尺寸、必要的加工工艺说明。

图27 楼梯总平面图

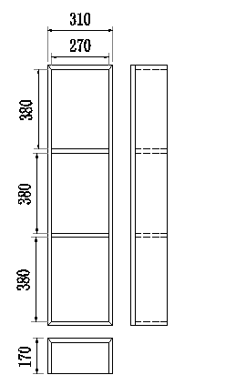
图28 分件图 & 图29 分件图

图32 分件图

图31分件图

图32分件图
2.11.2旋转楼梯平面图
旋转楼梯平面图有旋转楼梯总平面图、旋转楼梯拆分图、旋转楼梯分件图。
旋转楼梯平面图构成要素:楼梯板的外形形状、楼梯板的拼接关系、楼梯板的总尺寸、各部分的尺寸、分割线、石材名称或编号、产品分件编号、磨边线型符号、尺寸及尺寸标注线、楼梯板的开异型口尺寸、旋转楼梯半径、旋转楼梯标高、必要的加工工艺说明。图33为旋转楼梯的实景图;图34为旋转楼梯的总平面图

图33 旋转楼梯实景图

图34 旋转楼梯总平面图
2.12台面板平面图
台面板平面图表示台面板平面图,台面板产品虽然简单,但生产加工时要依据台面板的平面图形状加工。台面板平面图有圆形、椭圆形、方形、长方形、鼓形等。
台面板平面图构成要素:台面板的尺寸、外形形状、台面板的分割线、石材名称或编号、产品分件编号、磨边线型符号、尺寸及尺寸标注线、必要的加工工艺说明。台面板生产加工时生产员工要注意看边型图,不要磨错了边。

图35

图36
2.13壁龛平面图
表示壁龛平面形状的图。
构成壁龛平面图的要素:壁龛的尺寸、外形形状、壁龛的拼接关系图、壁龛的分割线、产品分件编号、磨边线型符号、尺寸及尺寸标注线、必要的加工工艺说明。

图37 壁龛总装图
2.14淋浴板平面图
表示淋浴板的平面关系图。
沐浴板平面图构成要素:淋浴板的尺寸、外形形状、沐浴板的拼接关系、台面板的分割线、石材名称或编号、产品分件编号、磨边线型符号、钻孔位置、板面开槽图、尺寸及尺寸标注线、必要的加工工艺说明。淋浴板产品多为一件板加工而成,因此平面图多为一张。

图38 淋浴板平面图
2.15浴缸平面图
表示浴缸板的平面关系图。
浴缸板平面图构成要素:浴缸板的尺寸、外形及内腔形状、台面板的分割线、石材名称或编号、浴缸拼接图、产品分件编号、钻孔位置尺寸、磨边线型符号、尺寸及尺寸标注线、必要的加工工艺说明。

图39 浴缸平面图
2.16背景墙平面图
表示背景墙上的产品平面关系图。
背景墙平面图构成要素:背景墙板的尺寸、外形形状、背景墙板的分割线、各产品形状的平面图、拼接关系图、石材名称或编号、产品分件编号、磨边线型符号、尺寸及尺寸标注线、必要的加工工艺说明。
图40为背景墙实景图,有背景实景图为参考,有利于生产员工加工。
图41为简单的背景墙平面图。
图42为复杂背景墙立面图;图43为该复杂背景墙的平面图。
一些石材背景墙产品很复杂,生产员工加工背景墙前应该事先认真看生产加工单上的平面图,弄清楚各部门相互间的关系,再动手加工,可以减少生产加工中的失误,提高生产作业效率。

图40 背景墙实景图

图41简单背景墙平面图

图42 背景墙立面图
图43背景墙平面图
3、粘接产品平面图
表示有粘接产品关系的平面图。石材产品粘接在石材产品加工非常普遍,因此看懂粘接产品间的相互关系非常重要。
粘接产品产面图有柱平面图、“折”型粘接平面图、塔形粘接平面图、多边形粘接平面图、搭接式、叠加式嵌入式、混合式粘粘接方式、板材与板材的粘接平面图、板材与线条粘接平面图、板材与圆弧板的粘接平面图、板材与圆柱柱脚、柱头的粘接平面图等形式。
3.1L型粘接平面图
将板材与板材,或板材与线条粘接成英文字母“L”型的形状,这是石材产品粘接较为普遍的形式。
3.2框型粘接平面图
将板材与板材,或板材与线条粘接成中文字“框”型的形状,这也是石材产品粘接较为普遍的形式。

图44 L型粘接

图45 框形粘接
3.3塔型粘接平面图
将板材与板材,板材与线条、弧板与弯线或其它石材产品粘接成多层呈塔状形式的产品平面图。
3.4“折”型粘接平面图
将石材产品粘接成“折”形状的产品。多用于背景墙脚线、天花线的整套粘接上。

图46 塔型粘接

图47“折”型粘接
3.5多边形粘接
将石材产品粘接成正多边形形状。多用于圆柱、方柱柱却产品的整套粘接上。
3.6平面异型板粘接平面图
平面异型板粘接成整体的平面图。

图48 正多边形粘接

图49 圆弧异型板粘接
3.7门楣粘接平面图
门楣粘接平面图多出现在壁炉、门套粘接上,反映各件产品的粘接关系。

图50 门楣粘接平面图
3.8线条与板材的粘接平面图
反映线条与板材粘接的平面图。经常出现在背景墙、门套线条与板材加中。

图51 线条与板材粘接平面图
3.9线条与线条粘接平面图
反映线条与线条粘接关系的平面图。

图52线条与线条粘接平面图
3.10圆柱与板材粘接的平面图
反映圆柱与线条粘接关系的平面图。

图53 线条与板材粘接平面图
3.11阳角平面图
反映墙面、柱之间各件产品拼接关系图。阳角平面图呈凸起形状。

图54阳角粘接平面图
3.12阴角平面图
反映墙面、柱之间各件产品拼接关系图。阴角平面图呈凹下形状。

图55 阴角粘接平面图
4、平面图上的线型表示
石材产品加工中有许多的磨边,因此在平面图上会用各种线型符号表示磨边方式。
常见的线形符号表示方法如下:

由于建筑结构的千变万化,形式多样,因此石材产品的平面图也是千变万化,种类繁多的,本文只列举了很有限的石材产品平面图让读者有个基本的了解。要更好掌握石材产品平面图有赖于生产加工中多看,多记,多了解才有更大的收获。看图就是个“熟能生巧”的过程,您看的越多,看图就越熟练,看图的速度越快,做产品时效率更高,质量更好!
