行业动态
家装中石材垭口门套的设计及安装节点
- 作者:
- 发布时间:2026-02-08 04:02:51
- 点击:

石材垭口
家里过道入口就是我们通常所说的垭口,在做垭口的时候,因为制作的材料比较多,所以大家的选择也比较多。

近年来石材垭口是大家比较喜欢的一种
那么石材垭口都有哪些款式呢?
又有哪些安装节点?

01、垭口和门套的区别
虽然垭口与门套相似,但是它们也还存在一些区别。
哑口是指,同一房间内不同区域相连处的通道,可包套,可做造型,可做护角。
门套是指,按门处门洞包套,一般与门同色,也可不同(比如套装门)。哑口套和门套,做法工艺相同,相对来讲,门套样式少,哑口造型及包套样式多。

02、垭口的优点

1、装饰
垭口与门套不同,垭口造型多样,没有门的限制,垭口可以更好地和室内设计风格相结合。
2、保护
垭口可以保护墙壁不被碰坏和弄脏。
3、分割
垭口的一大作用就是区分功能空间,达到空间既区分又统一的作用。

03、哪些地方会用到垭口

# 玄关
从玄关进入室内,一个垭口装饰会起到很好的划分空间的作用。
# 过道
大户型中过道较多,为了保持通透和大宅气派,一般不会在过道中安装门,这时候就需要安装垭口。
# 阳台
阳台不安装门的话,那么就需要垭口来装饰。这样既保持了阳台和室内空间的贯通,还能让阳台更加漂亮,同时充当两个空间的软隔断

04、适用垭口的风格
1、田园风格:
选用仿天然石材,使用规则或不规则的造型,点缀于垭口边框上,营造一种回归自然之感。另外,美式田园风格经常使用原木色家具,垭口用同样材质装饰,显得更加清新。
2、欧式风格:
这种风格由于造型比较复杂,所以比较适合大户型或相对宽敞的空间。这种垭口往往也比较宽大,可以做一些罗马柱、圆弧等造型装饰在垭口上,以呼应整体风格。
3、现代简约:
对于追求酷感的年轻人,可以选择以黑、白、灰色调为主的简约风格,或是灰色的不锈钢装饰垭口,与整体风格呼应。

05、垭口的造型及安装节点
# 造型
垭口造型多种多样,常见的有圆形、拱形、直角门洞等,也有一些造型别致的门洞。
运用合适的门洞造型可以让墙体生动、美观,也能很好地区分空间,明确家装格局,使室内家居显得井井有条。
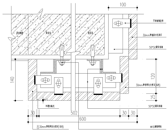
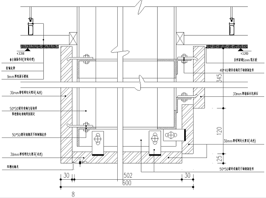
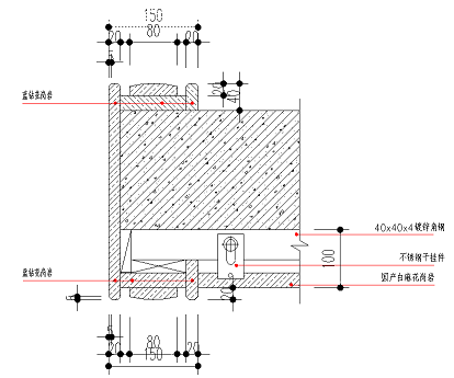
# 安装节点

▲ 花岗岩石材垭口剖面节点图

▲ 大理石石材垭口剖面节点图

▲ 花大厅走廊入口垭口剖面节点图
- 上一篇:如何治理石材被油类污染
- 下一篇:人造石英石生产及成品加工工艺流程
