行业动态
背栓连接干挂石材幕墙施工工艺及操作要点
- 作者:
- 发布时间:2026-02-09 13:00:28
- 点击:

干挂石材幕墙是一种高档的外墙装修
普遍应用于各类公用建筑

背栓连接是通过背栓、连接件将石材板与骨架连接的一种石材幕墙固定方法。通过工程实践,总结形成本工法。

工法特点
1、对施工现场污染少,较为环保。
2、可准确控制石材与锥形孔底的间距,确保幕墙的表面平整度及垂直度。
3、每块石板材可独立安装、独立更换,作为独立单元受力,能排除硬性接触带来荷载反应,具有更好的安全性能及抗风压、抗震动和降低热胀冷缩效应等性能,使用寿命更高。节点做法灵活,使用过程中,维修更换方便。
4、背栓的具体型号和种类。
5、背栓式石材干挂件的承载能力高于传统做法。且石材板成孔质量好,工厂化施工程度高,板材上墙后调整工作量少,可提高现场安装进度。

适用范围
适用于建筑高度不大于100m、非抗震设计或抗震设防烈度不大于8度的公用建筑石材幕墙工程施工。

工艺原理
运用具有气压成孔技术的石材背栓钻孔设备,在石材板背部距板边100~180mm处进行磨孔、拓孔。
将成孔合格后的石材板与背栓采用尼龙网套柔性结合,并以每块石材板为单元将力直接通过骨架传递到主体结构。

施工工艺流程及操作要点
01 工艺流程

02 操作要点
1、施工前准备:预埋件位置、牢固性检查,当预埋件偏差超出相关要求时,应有合理的预埋件修补和弥补方案,并根据方案进行处理,直至满足要求。
骨架安装前进行石材幕墙的“四性—风压变形性能、雨水渗漏性能、空气渗透性能(有热工性能要求时做)、平面内变形性能”试验。
2、测量放线:根据主体结构的基准轴线和水准点进行准确定位,对照幕墙施工图将转角位置、轴线位置、变高截面位进行复核检查,确保放线准确。测量时应控制分配测量误差,不能使误差积累。测量放线应在风力不大于4级的情况下进行,并要采取避风措施。
3、金属骨架加工、安装:
1)根据施工放样图检查放线位置,以现场尺寸加工下料。
2)安装同立面两端的竖框,然后拉通线按顺序安装中间竖框。将各施工水平控制线引至竖框上,并用水平尺校核。
3)按照设计尺寸安装金属横梁。横梁一定要与竖框垂直。焊接前,应对下方和相邻的已完工作面进行保护;焊接时需采用对称焊,以减少因焊接产生的变形。焊缝质量检查合格后,对所有焊点、焊缝去焊渣及刷防锈漆。
4)钢构件表面防锈处理应符合现行国家标准《钢结构工程施工验收规范》GB 50205的有关规定,钢构件焊接、螺栓连接应符合现行国家标准《钢结构设计规范》GBJ 17及《钢结构焊接技术规程》JGJ 81的有关规定。
5)幕墙防雷装置必须严格按照设计及相关标准与主体结构防雷装置进行有效连接。
6)防火层的衬板采用厚度不小于1.5mm的热镀锌钢板,不得采用铝板。接缝处打防火胶,防火层的密封材料应用防火密封胶。
4、铝合金连接件安装:
铝合金连接件应选用背栓生产厂家的配套产品。连接件与金属骨架的连接应按照现行规范要求施工作业,根据螺栓材质确定是否需要采取防锈、防腐蚀措施。
5、 石材板加工、成孔
1)严格控制石材色差、尺寸偏差以及破损,若有明显色差、破损、缺楞、裂痕、掉角等石材不得使用,石材板颜色和花纹协调一致,将合格石材板按图纸进行编号分类。
2)石材板成孔工艺及要求
①石材板成孔工艺:采用专用设备磨削柱状孔→拓孔→清孔

图1 石材板成孔剖面图
②石材板成孔尺寸控制要求见表5.1。


注:h/(单切面背栓无)的厚度由石材厚度允许公差决定。
3)用专用石材背栓钻孔设备对石材板进行成孔作业,在石材板背面上下两边进行磨孔,孔位距边缘100㎜~180㎜;横向间距不宜大于600㎜。
背栓钻孔设备切削孔转速最高为12000r/min,自动升频;设备使用与背栓型号、连接形式匹配的钻头,利用气压成孔技术进行磨孔、拓孔,对石材板不会造成损伤。石材板成孔后,对孔径、孔深、拓底孔进行检查,合格后方能安装背栓。随着石材开孔技术的改进,使得开孔成本大大降低。
4)石材板的背栓

注:上表为常用规格,超规格的应通过具体计算确定。
5)背栓植入
安置工作台(台面放置合适的橡胶板)→放置已成孔的石材板→将背栓植入石材板孔中→完成背栓紧固→组件抗拉拔试验。
根据背栓型号确定背栓植入紧固方法,非旋进式背栓—使用专用工具击胀(抽拉)使胀管端扩张紧固;旋进式背栓—旋进螺栓使胀管端扩张紧固。
在背拴表面增加了尼龙网套,可提高了背拴挂件的抗震性能,排除背栓与石材板硬性接触而降低热胀冷缩效应。
6. 石材板安装
1.建筑物为多层的石材幕墙安装:将组装完成的石板材按照从下到上、从左到右依次进行安装即可。
先按幕墙面基准线仔细安装好底层第一皮石材板,且宜先完成窗洞口四周的石材板镶边。安装完每一楼层后,要注意调整垂直度误差,不要积累。
2.建筑物为高层的石材幕墙安装:将组装完成的石板材按照从上到下、从左到右依次进行安装即可。
先按幕墙面基准线仔细安装顶层第一皮石材板,且宜先完成窗洞口四周的石材板镶边。安装完每一楼层后,要注意调整垂直度误差,不要积累。
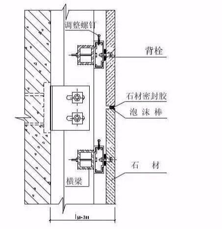
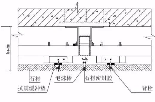
3.安装节点图如下:

图2 背栓干挂石材幕墙纵剖面节点图

图3 背栓干挂石材幕墙横剖面节点图

图4 背栓干挂石材幕墙窗台剖面节点图

图5 背栓干挂石材幕墙转角剖面节点图
7、石材板拼缝口处理
石材密封胶注胶前必须进行相溶性试验和耐污染试验,合格后方可使用;石材拼缝口密封处理分为敞缝式和密封式。根据设计和地区特点情况进行合理选择。
1)敞缝式密封处理是采用在石材拼缝内侧增加挡水片,防止雨水溅入,能较好地解决挡雨的问题。优点在于提高外墙饰面的美观,缺点在于不适合有热工性能要求的石材幕墙工程,适用范围受限。
2)密封式处理是对石材板拼缝进行注胶密封。优点在于适宜范围广,对有热工性能要求的建筑有利,缺点在于硅胶易发黄变质、沾尘污染等,影响外墙饰面的美观。
①为确保粘结质量,注胶前清洁石材板拼缝口表面的灰尘、水、油污等物,并保持石材板拼缝干净、干燥;
②为确保拼缝注胶质量,注胶前用带有凸头的刮板填装泡沫棒,选用的泡沫棒直径应略大于胶缝宽度;
③为保证石材板面的洁净,注胶前用纸胶带沿缝隙两侧进行粘贴;
④嵌缝胶选用石材板专用硅酮密封胶,注胶温度应在5~40度范围内进行,注胶应尽量连续,胶缝均匀、密实、饱满,胶体不得产生气泡。
若不慎将胶体沾在墙面上,应立即除去,并用清洁剂及时清除余胶。胶体厚度一般为缝宽的1/2,且不小于4mm,不得大于缝宽, 胶体太厚则容易使胶体受力时被拉断拉裂,造成密封和防渗漏失效;
⑤打完胶后要在表层固化前用刮板将胶缝刮为凹缝,胶面要光滑、圆润,不能有流坠、褶皱现象。
胶缝修整完毕后应立即将两侧纸胶带撕掉,打胶操作业应避开阴雨,大风天气;
⑥注胶施工完后,用干净的棉质或脱绒白布倒上溶剂对胶缝两侧石材面进行清洁,禁止将白布入内沾取,溶剂为专用清洁剂或草酸。注意已完工作面的保护。
- 上一篇:如何选择石材的厚度才是最佳的?
- 下一篇:玉石的崩坑如何处理?
