行业动态
宁夏大剧院 | 花瓣型石材幕墙背栓系统要点解析
- 作者:
- 发布时间:2026-02-09 11:04:36
- 点击:

宁夏大剧院
系统的主要特点
宁夏大剧院双曲面花瓣造型石材幕墙设计,采用背栓石材开缝处理,并且花瓣背向地面方向倾47.25°-82.52°。采用异形石材,拼接出双曲面花瓣造型,石材选用慧鱼背栓连接,配合铝合金挂件系统。
主要材料
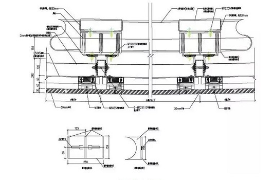
石材幕墙主立柱选用100×60×6mm钢方管,转角位置选用120×100×6mm钢方管,均按双跨梁力学模型计算,钢横梁选用L50×5mm角钢,材质均为Q235B,表面均热镀锌处理。石材选用30mm厚花岗岩,表面六面防护处理。开放式石材接缝,内部采用1.5mm镀锌钢板防水封堵。钢架穿透防水部分,采用德泰盖片防水体系。
重点难点分析
1、花瓣石材造型复杂,如何解决石材的深化设计、下料加工、现场定位安装等问题。 2、主体钢结构已经安装完成,如何处理好幕墙焊接施工,不影响主体钢结构的安全。3、花瓣内部钢架不可避免的要穿透防水钢板,在主体钢结构正常变形范围内如何解决防水问题。


宁夏大剧院现场结构照片
解决方案
1、考虑到工程的特殊性,本工程花瓣部分主体结构为全钢结构,位移变形较大。选用背栓式可三维调节石材连接系统,不但很好的解决了石材板块安装精度的问题,而且通过铝合金挂件系统开模,解决了因石材纵向曲率变化,产生的挂件角度不同带来的石材面板不均匀受力问题,化解和安装困难也避免了幕墙石材板块铝挂件之间刚性接触,降低了幕墙使用过程中的摩擦噪音。






2、经过运用建模辅助软件犀牛(带grasshopper插件),对曲面的进行分析和石材尺寸和订单处理。

3、经过模型分析,得到结论石材的曲率,按照曲率来区分平板和双曲石材板。由于曲线的线变,导致石材的尺寸是完全的唯一化,所以采用软件建模分析生成数据就显示出在加工翻样图中的优势。


4、模型建好后,经过软件处理获取了大量的信息数据,包括面板的拟合数据、测量控制定位点、材料加工数据等。

5、先通过软件获取四边形板一点到另外三点组成面的最大值,筛选出可以做平板的板块;4点不共面的翘角高差在10mm之内的,可按平板处理。筛选之后再对双曲面版进行分析,获得各种参数,并配合绘制加工图。





主结构不可焊接的解决方案
为了不对主结构钢梁整体稳定性产生影响,结构工程师要求幕墙不可在主体钢结构上进行二次焊接。为此,开发设计了三维抱箍转接可调节支座,避免幕墙支座焊接对主体结构的不良影响。



德泰盖片聚脲涂层防水系统
为解决花瓣内部钢龙骨穿透防水钢板的问题,对防水位置进行了特殊设计,在保证接口部位能满足位移和温度变形的同时,采用了专业的防水材料得泰盖片和聚脲防水涂层,克服了钢性防水材料的漏水和噪音等问题,很好的保证了幕墙的防水性能。


来源:《幕墙设计》杂志、幕墙世界Weekly
作者:北京港源建筑装饰工程有限公司
吴治刚、温明、刁飞宙、许昌得、张东辉
如有侵权请联系删除
