行业动态
干货!7种石材相接工艺详图
- 作者:
- 发布时间:2026-02-09 09:01:22
- 点击:
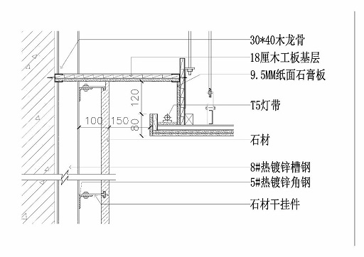
01 墙面石材与顶面乳胶漆相接工艺

适用部位:
①、墙面石材与顶面乳胶漆
②、石材背景与顶面乳胶漆
③、石材线条与顶面乳胶漆
④、石材乳胶漆相接窗帘盒
⑤、石材乳胶漆相接其他洗墙灯做法
注意事项:
①、干挂与湿贴法的配合
②、对不同材质接缝的完善
③、对不同材质收口美观
④、根据现场实际情况进行钢架制作
用料及分层做法:
①、钢架基层采用8#槽钢顶面、地面固定,按石材分缝横向焊制镀锌槽钢
②、采用50系列轻钢龙骨,木龙骨与木工板防火涂料三遍处理
③、外封纸面石膏板,腻子乳胶漆处理
④、选取20mm石材,通过钢架干挂石材防护处理
⑤、安装顶面亚克力灯箱

用料及分层做法:
①、采用50系列轻钢龙骨,木龙骨与木工板防火涂料三遍处理
②、外封纸面石膏板,腻子乳胶漆处理
③、墙面按照石材分部焊制5#角钢
④、选取20mm石材,通过钢架干挂石材防护处理,预留5mm工艺缝

适用部位:
①、石材与顶面乳胶漆
②、石材背景与顶面乳胶漆
③、石材线条与顶面乳胶漆
注意事项:
①、干挂与湿贴法的配合
②、对不同材质接缝的完善
③、对不同材质收口美观
④、根据现场实际情况进行钢架制作
⑤、石材钢架基层与轻钢龙骨的配合
用料及分层做法:
①、采用50系列轻钢龙骨,“U”型延边护墙龙骨
②、外封纸面石膏板,预留20*10缝隙
③、墙面按照石材分部焊制8#镀锌槽钢5#角钢
④、选取20mm石材,通过钢架干挂石材防护处理,墙面按实际情况分缝处理
⑤、腻子乳胶漆三遍处理

适用部位:
①、石材与顶面乳胶漆
②、石材背景与顶面乳胶漆
③、石材线条与顶面乳胶漆
④、石材乳胶漆相接窗帘盒
注意事项:
①、干挂与湿贴法的配合
②、对不同材质接缝的完善
③、对不同材质收口美观
④、根据现场实际情况进行钢架制作
用料及分层做法:
①、钢架基层采用8#槽钢顶面、地面固定,按石材分缝横向焊制镀锌槽钢
②、采用50系列轻钢龙骨,制作灯槽造型,木龙骨与木工板防火涂料三遍处理
③、外封纸面石膏板,腻子乳胶漆
④、选取20mm石材,通过钢架干挂石材防护处理
⑤、安装顶面灯管

适用部位:
①、石材与顶面乳胶漆
②、石材背景与顶面乳胶漆
③、石材线条与顶面乳胶漆
注意事项:
①、钢架基层与轻钢龙骨基层的配合
②、对不同材质接缝的完善
③、对不同材质收口美观
④、根据现场实际情况进行钢架制作
用料及分层做法:
①、钢架基层采用60*40方管顶面、地面固定,防锈处理
②、采用50系列轻钢龙骨,木龙骨与木工板防火涂料三遍处理
③、外封纸面石膏板
④、钢架外封10mm硅酸钙板,杉木条厚9mm,间隔50mm一根,封钢丝网,20mm水泥砂浆找平
⑤、选取20mm石材湿贴与找平层上,石材防护处理
⑥、贴成品石膏线条,顶面腻子、乳胶漆三遍

用料及分层做法:
①、采用50系列轻钢龙骨,木龙骨与木工板防火涂料三遍处理
②、外封纸面石膏板,腻子乳胶漆处理
③、墙面按照石材分部焊制5#角钢
④、选取20mm石材,通过钢架干挂石材防护处理,预留5mm工艺缝
02 墙面石材与顶面铝板相接工艺


适用部位:
①、墙面石材与顶面铝板
②、石材背景与顶面铝板
注意事项:
①、钢架基层与干挂件的配合
②、对不同材质接缝的完善
③、对不同材质收口的美观
用料及分层做法:
①、顶面造型放线,墙面造型放线
②、墙面钢架安装
③、顶面轻钢龙骨安装
④、墙面石材安装
⑤、顶面铝板安装,并用收边龙骨收边
03 石材与混凝土柱体相接工艺

适用部位:
①、石材与混凝土柱体
②、石材与混凝土墙体
③、石材踢脚与混凝土墙体
④、石材套框与混凝土墙体
注意事项:
①、4m高的柱体,采用8#槽钢
②、高于4m高的柱体,采用10#槽钢
③、石材排版的不同决定5#角钢的间距
用料及分层做法:
①、选用18mm石材,均经过六面防护、晶面处理
②、塑造石材造型,3mm倒角磨边
③、混凝土柱体固定镀锌钢板,一般用8#膨胀螺栓固定
④、在干挂件无法满足造型的需求下,采用满焊5#角钢转接件,以调整完成面与墙体的间距
⑤、满焊8#镀锌槽钢竖向
⑥、满焊5#镀锌角钢横向龙骨
⑦、固定不锈钢干挂件
⑧、AB胶固定石材,安装完成
⑨、近色云石胶补缝,水抛晶面
04 石材与建筑钢柱相接工艺

适用部位:
①、石材与建筑钢柱
②、石材踢脚与建筑钢柱体
③、石材套框与建筑钢柱体
注意事项:
①、4m高的柱体,采用8#槽钢
②、高于4m高的柱体,采用10#槽钢
③、石材排版的不同巨鼎5#角钢的间距
用料及分层做法:
①、选用18mms石材,均经过六面防护,晶面处理
②、塑造石材造型,3mm倒角磨边
③、抱箍固定于钢柱,不可与其焊接,顶地固定镀锌钢板,一般用8#膨胀螺栓固定
④、满焊8#镀锌槽钢竖向,与抱箍、顶地镀锌钢板焊接
⑤、满焊5#镀锌角钢横向龙骨
⑥、固定不锈钢干挂件
⑦、AB胶固定石材,安装完成
⑧、近色云石胶补缝,水抛晶面。
05 石材与混凝土墙体相接(卫生间挂贴)

适用部位:
卫生间石材与墙面相接
注意事项:
①、石材背面刷防碱涂料
②、墙面做防水处理
用料及分层做法:
①、墙面做JS防水层
②、选用18mm石材,均经过六面防护,晶面处理
③、塑造石材造型,上下口做3mm倒角
④、石材安装前进行打眼,方便铜丝固定(上下共4个眼)
⑤、钢筋与石材固定
⑥、土建墙体固定膨胀螺栓
⑦、钢筋于螺栓固定,钢筋成网状
⑧、铜丝拴绑于钢筋网
⑨、石材与墙体之间填充水泥砂浆,即灌浆
06 石材与加气块墙体相接工艺


适用部位:
①、石材与加气块墙体
②、石材踢脚与加气块墙体
③、石材套框与加气块墙体
注意事项:
①、4m高的墙体,采用8#槽钢
②、高于4m高的墙体,采用10#槽钢
③、石材排版的不同决定5#角钢的间距
用料及分层做法:
①、选用18mm石材,均经过六面防护、晶面处理
②、塑造石材造型,上下口做3mm倒角
③、加气块墙体固定镀锌钢板,一般用8#穿墙螺栓固定
④、在干挂件无法满足造型的需求下,采用满焊5#角钢转接件,以调整完成面与墙体的间距
⑤、满焊8#镀锌槽钢竖向
⑥、满焊5#镀锌角钢横向龙骨
⑦、固定不锈钢干挂件、AB胶固定石材,安装完成
⑧、近色云石胶补缝,水抛晶面
07 石材与混凝土墙体相接工艺


适用部位:
①、石材与混凝土墙体
②、石材踢脚与混凝土墙体
③、石材套框与混凝土墙体
注意事项:
①、4m高的墙体,采用8#槽钢
②、高于4m高的墙体,采用10#槽钢
③、石材排版的不同决定5#角钢的间距
④、石材高度大于等于500mm,中间用石材加云石胶定位AB胶加固⑤、马片间距,石材800mm以内用两个马片,800mm以外用三个马片,马片间距不大于500mm
用料及分层做法:
①、选用18mm石材,均经过六面防护、晶面处理
②、塑造石材造型,上下口做3mm倒角
③、加混凝土墙体固定镀锌钢板,一般用8#穿墙螺栓固定
④、在干挂件无法满足造型的需求下,采用满焊5#角钢转接件,以调整完成面与墙体的间距
⑤、满焊8#镀锌槽钢竖向
⑥、满焊5#镀锌角钢横向龙骨
⑦、固定不锈钢干挂件、AB胶固定石材,安装完成
⑧、近色云石胶补缝,水抛晶面
来源: 华建环境设计研究所
