行业动态
石材工艺|消防栓门的通用节点图集
- 作者:
- 发布时间:2026-02-09 08:05:18
- 点击:

可适用于酒店、会所、别墅、精装房等,观感要求较高,是整体装饰效果较好场所内的消火栓箱暗门材料。
石材(饰面砖)材质消防箱暗门就固有材料特性而言,是装饰工程改造中消火栓箱的理想材料,一方面防火等级为A级,同时又能满足高端装饰效果。
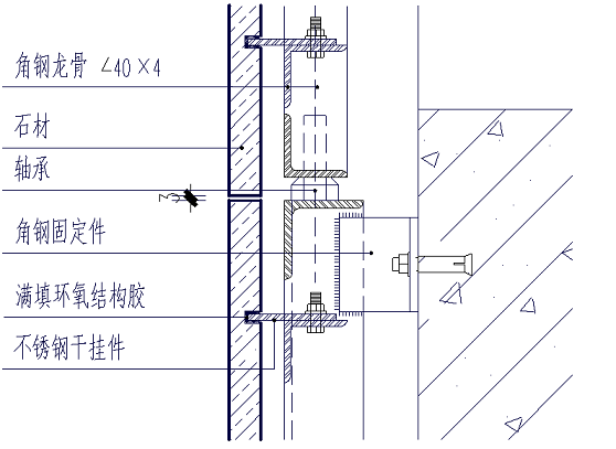
但由于石材的比重较重,一般工艺做法是制作轻质钢架基层、后干挂石材完成暗门制作。因此对钢架基层的质量控制与过程验收极其重要。

▲ 石材消火栓箱暗门施工完成照片

01石材饰面消防栓门上应有明显标识,设计应征得消防部门审批同意。



▲ 消防栓立面示意图
02石材饰面消防栓门为立柱门,仅能开启,门扇开启后门洞净尺寸应大于消防栓尺寸。


03门扇立轴用止推轴承固定,立轴位置宜尽量靠外靠边。


044. 门扇上的石材应统一安排工厂加工,尤其有明显纹理的石材,更应注意对纹。

055.门扇上的石材可以用平插式不锈钢干挂件或用环氧工程胶固定。



