行业动态
1000㎡别墅,用白色大理石演绎最美的优雅与极致
- 作者:
- 发布时间:2026-02-09 08:03:40
- 点击:
白是来自混沌中心最独特与鲜明的形象,白是这一独特性最极端的例子。白色大理石是纯洁、明亮、愉悦的

本案位于成都国际城南天府新区的麓山国际社区,以传统美式生活别墅为主,一些空间结构与国人的现代生活方式存在较大的差别。
在这样的基础和前提下,一个原本600平米的精装美式别墅,变成了如今1000平的现代主义别墅。整体明净通透的白为主调,铺陈开一曲流动的艺术乐章。













以天然石材为局部墙体
精良立体的质地
彰显考究的硬朗气场








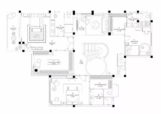
一层平面图



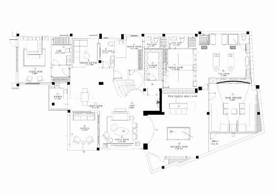
负一层平面图

项目名称:1000平私人别墅
案例地址:成都 · 麓山国际社区
设计机构:STUDIO.Y余颢凌设计事务所
主创设计:余颢凌
软装设计:刘芊妤
执行设计:阴倩
软装助理:唐竞
案例面积:1000㎡
完工时间:2017年10月
空间摄影:张骑麟
- 上一篇:浅谈石材矿山开采方法
- 下一篇:用石材拼花打造一个温馨、浪漫情调之家
