行业动态
石材与玻璃的节点工艺怎么做?这篇文章告诉你
- 作者:
- 发布时间:2026-02-09 07:01:59
- 点击:
玻璃材料和石材是我们在工程项目中经常用到的两种装饰材料,面对这两种不同的材料和其在项目中的不同使用方法,你能熟练掌握他们的节点工艺做法吗?
本篇文章关于玻璃与石材的节点工艺做法。
将从以下2条玻璃节点工艺、3条石材节点工艺进行展开:
1、玻璃栏杆扶手工艺做法
2、玻璃窗户与墙面相接
3、石材与墙砖相接工艺做法
4、石材与木饰面平接工艺做法
5、石材与软包相接工艺做法
玻璃栏杆扶手工艺做法

玻璃栏杆扶手工艺做法△
注意点:
1、不同使用场合,玻璃的选材不一样;
2、玻璃高度及受力不同,U型槽的深度要求也不同;
3、做夹子固定上口石材活动,玻璃槽深度在140以上两边各留20灌石膏固定。
详细工序:
1、玻璃物料选样,无划痕,无损伤;
2、钢架基层预埋,U型槽的焊接安装;
3、弹性胶垫填充,安装玻璃,透明胶条填充,收口处3mm打胶处理;
4、清理,保护。

玻璃窗户与墙面相接

玻璃窗户与墙面相接①△
注意点:
不同使用场合,玻璃的选材不一样。玻璃高度及受力不同,U型槽的深度要求也不同。
详细工序:
1、玻璃物料选样,无划痕,无损伤;
2、钢架基层预埋,U型槽的焊接安装,弹性胶垫填充;
3、安装玻璃,透明胶条填充,收口处3mm打胶处理,清理,保护。
其它构造:

玻璃窗户与墙面相接②△

艺术玻璃窗户与墙面相接△
石材与墙砖相接工艺做法

石材与墙砖相接节点①△

石材与墙砖相接节点②△
注意点:
1、分清贴法工艺;
2、对不同材质加以区分;
3、石材线条与线条间的拼接关系;
4、收口完整。
材料分析:
1、选用米白色大理石20mm,选用12mm玻化砖;
2、石材铺贴普通硅酸盐水泥配细沙或粗砂或用石材专用AB胶铺贴;
3、墙砖用普通硅酸盐水泥或胶泥铺贴,石材需做六面防护;
4、完成面处理,用专用填缝剂灌缝、擦缝、保洁,专用保护膜做成品保护。
详细工序:
准备工作—现场放线—材料加工—基层处理—水泥砂浆结合层—石材专用AB胶—铺贴石材、墙砖—灌封、擦缝—完成面处理
石材与木饰面平接工艺做法

石材与木饰面节点①△

石材与木饰面节点②△
注意点:
1、木饰面留V型缝或留凹槽,大于5mm贴木皮,小于5mm作色;
2、木饰面安装从上到下,最后一块板活动;
3、先安装石材,后安装木饰面。
材料分析:
1、选用指定加工石材20mm倒角20*5mm,定制成品木饰面基础材料多层板;
2、用石材专AB胶铺贴,木饰面基础需做三防处理;
3、石材需做六面防护;
4、完成面处理,保证石材与木饰面拼接缝完整,石材做抛光处理,专用保护膜做成品保护
详细工序:
准备工作—现场放线—材料加工—基层处理—轻钢龙骨隔墙制作—木饰面基础固定—石材专用AB胶—铺贴石材—成品木饰面安装—完成面处理
其它收口:

石材与木饰面阴角节点①△

石材与木饰面阴角节点②△

石材与木饰面节点③△

石材与木饰面相接节点④△
石材与软包相接工艺做法

石材与软包相接节点①△

石材与软包相接节点②△
注意点:
1、由于其材质特殊在施工时要注意工序、材料保护,成品保护;
2、由于软包存在可变性所以造型、样式不一,对此一定要注意造型规格与材料尺。
防治措施
1、轻钢龙骨隔墙材料,选用指定石材加工,软包基层固定、其他材料防火夹板;
2、用石材专用胶固定安装,软包基层需做三防处理,石材需做六面防护;
3、完成面处理,专用保护膜做成品保护。
防治措施
准备工作—现场放线—材料加工—基层处理—轻钢龙骨隔墙制作—基层防火板固定—石材专用粘结剂—铺贴石材—成品软包安装—完成面处理

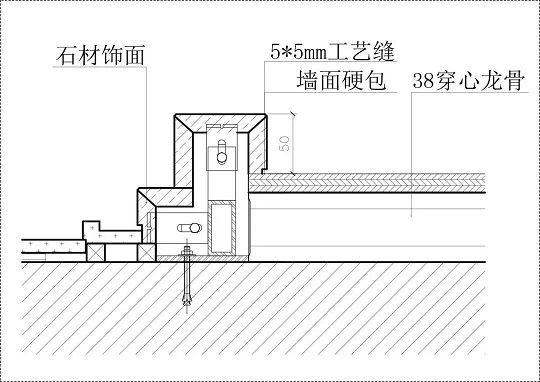
石材与硬包相接节点△
注意点:
1、由于其材质特殊在施工时要注意工序、材料保护,成品保护;
2、由于硬包存在可变性所以造型、样式不一,对此一定要注意造型规格与材料尺。
材料分析:
1、轻钢龙骨隔墙材料,选用指定石材加工;
2、硬包基层固定、其他材料轻钢龙骨,用石材专用胶固定安装;
3、硬包基层需做三防处理,石材需做六面防护;
4、完成面处理。
详细工序:
准备工作——现场放线——材料加工——基层处理——轻钢龙骨隔墙制作——基层龙骨、基层板固定——石材专用粘结剂——铺贴石材——成品硬包安装——完成面处理
来源:新筑课堂
