行业动态
石材深化设计 | 一些常见重难点工艺做法!
- 作者:
- 发布时间:2026-02-09 05:05:11
- 点击:
1、墙面做法深化设计方案
针对性的解决措施:
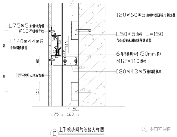
大堂墙面石材尺寸为整块大型石材,单块面积超过1.5平方米,重量超重,尺寸偏大,不适用普通石材干挂法施工。
为保证大块石材安装的安全性及牢固性,建议石材背后做加强钢架,用背栓与石材连接做成单元体,再与竖向刚架主龙骨挑出的槽钢连接,石材板上部与槽钢采用挂接,与下边石材板连接采用插接。既保证了牢固性,又方便拆卸更换。详见附图。




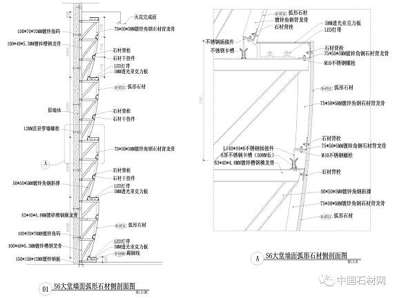
2、异形石材施工方案
针对性的解决措施:
来福士大堂墙面石材尺寸为整块大型石材,单块面积接近2.5平方米,重量超重,尺寸偏大,不适用普通石材干挂法施工。为保 证大块石材安装的安全性及牢固性,建议石材背后做加强钢架,用背栓与石材连接做成单元体,做蜂窝石材。
再与竖向刚架主龙骨挑出的槽 钢连接,石材板上部与槽钢采用挂接,与下边石材板连接采用插接。既保证了牢固性,又方便拆卸更换。详见附图。

3、天花石材施工设计方案
针对性的解决措施:
天花石材安装难点是石材重量大,安装固定安全性非常重要。
此做法采用石材背栓固定于石材板背后,连接 “Z”形铝合金挂件,挂于定制的80*50梯形铝合金主龙骨,Z型龙骨带钩可自锁以保持石材的稳定性。主龙骨通过吊杆或角钢与上方结构楼板连接。(详见下图节点图)。


4、石材、瓷砖墙滑卡式干挂件
滑卡式干挂件通过竖向方钢主龙骨,用可调螺栓连接L型角码,再把石材背栓挂件,卡入L型角码。此系统优点为可实现三维调节,标准化成度高、减少焊接作业、安装快捷、节省用工用料。




- 上一篇:别墅外墙最受欢迎的3款花岗岩
- 下一篇:岩板背景墙有拼缝,正常有哪些处理方式?
