行业动态
5步让你学会楼梯模板施工工艺!
- 作者:
- 发布时间:2026-02-08 19:03:45
- 点击:
1、模板加工
1)、楼梯梁靠楼梯段侧模的加工
楼梯梁靠楼梯段侧模高度的确定主要通过相似三角形原理计算得到的。

坡度=AB/BC,AE=梁高
计算时由A点向梯板底做垂线得一直角三角形AFD,则三角形AFD和三角形ABC相似,由相似三角形定律可得以下公式,从而求出梁侧板高度FE

2)、楼梯梁底模的加工
①、楼梯段底模长度FD的确定

FD/AC=BC/FE
AC2=AB2+BC2
图纸已知:AB为踏步高、BC为踏步宽,直角三角形ABC与直角三角形FDE相似,由相似三角形定律可得以下公式,从而求得楼梯段底模的长度FD
3)、楼梯梁侧模加工(如图五)
①、楼梯段侧模高度的确定
AB为踏步高、AC为踏步宽,DE为梯板厚度,直角三角形ABC与直角三角形ABE相似,由相似三角形定律可得:
AE/AC=AB/BC
BC2=AB2+AC2
从而求出梁侧板高度AE

由AD=AE+ED求出梯板侧模的高度AD。
②、楼梯段侧模长度的确定(如图六)

IE为踏步高
IC为踏步宽
EF为梯板的厚度
直角三角形ICE与直角三角形DEF相似,由相似三角形定律可得:
DF/IE=EF/IC
AB=2DF+EH
③ 、楼梯段侧模加工(如图七)
楼梯侧模成型后如右图所示红线部分,加工时应找块比其尺寸适当大的模板,在上面按踏步尺寸画线,之后锯成踏步形状。


4)、楼梯段踏步板模的加工
楼梯段踏步板模的长和宽即为踏步的高度和长度。
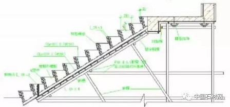
2、楼梯段搭设支架
楼梯支架制成形式有两种,具体见图八、图九

图八 斜支撑

图九 竖向支撑
楼梯段搭设支架可用木方、钢管支架等材料搭设。
1)、竖立杆
间距具体按受力计算定,一般横向间距为800~1200;纵向间距为1000~1200。
2)、水平拉杆
一般间距1200mm,离地300mm~600mm设第一道,以上每隔1200mm设一道,最上部留1000mm高操作部位。
3)、铺设主龙骨
主龙骨放置在立杆顶部。一般采用100mm×100mm木方作主龙骨,主龙骨架在可调高度的顶托上,既可方便施工,又能随时调节矫正梁标高。
4)、铺设次龙骨
一般采用60×80mm方木横向(与主龙骨垂直)铺设在主龙骨上面,间距一般为300mm。
3、铺楼梯段底模板
底模板铺设是在平台段底模板和楼梯梁靠楼梯段侧模板已铺设完毕,要先在两端拉线将次龙骨面整平顺后,再钉楼梯段底模板。
4、楼梯段侧模板安装
楼梯段侧模板安装采用侧模包底模的方法安装。应在平台段侧模板安装后再安装楼梯段侧模板,安装时在平台段侧模板顶部和楼梯梁侧模板顶部拉通线安装。
注意:
要注意平台板和梯段侧板节点及楼梯梁和梯段侧板节点,要根据现场情况进行误差调整!
5、铺楼梯段踏步模板安装
楼梯段踏步模板安装时要紧靠楼梯段侧模板所锯出的台阶竖边上。全部安装完后要注意多排侧板用木板纵向拉结。
注意:
楼梯侧模要求注意考虑到装修厚度的要求,使上下跑之间的梯阶线在装修后对齐,确保梯阶尺寸一致,按这样的要求施工时,踏步要向里移动20mm。
(来源:建筑这些事)
