行业动态
大理石窗台安装方法是什么?如何选择,看这一篇就够用了
- 作者:
- 发布时间:2026-02-08 19:02:06
- 点击:

小小窗台石也有大讲究
窗台虽然是一个比较小的地方,但是也是一个比较重要的地方,影响着整体装修效果。
那么窗台装修选什么颜色的大理石好?大理石窗台安装方法是什么?小编就给大家详细说明一下。

窗台装修选什么颜色的大理石好?


#01
单色大理石一般需要均匀的颜色,彩色大理石需要图案和深度的逐渐过渡,带图案的大理石需要清晰的图案,明亮的色彩和有规则的图案。
#02
大理石窗台颜色可以提高人们的欣赏价值。由于大理石具体良好的光亮度,所以通过大理石进入的阳光可以使房间变得明亮,它能很好的保护窗台,不易褪色,保持原有的亮度。
#03
大理石根据其抛光面的基本颜色,大致分为白色,黄色,绿色,灰色,红色,咖啡色,黑色七大系列,每一个系列根据抛光面和颜色和图案特点可分为几个子类,如:汉白玉、松香黄、丹东绿等。
#04
大理石的花纹,粒径大小不一,包括景观型,云型,花型,雪花型,色彩丰富,不断变化。因此,窗台装修大理石也需要许多品种和颜色,可以应用于建筑物的不同部位。
卧室飘窗大理石用什么颜色好?

窗户台面用大理石装饰的地方,多指几个卧室里的窗户台面,还有客餐厅的窗台,包括家中飘窗。
它们的平面处用大理石来制作窗台石,优点不少,它不仅能隔热,最重要的是防潮,大理石本身的高硬度,不变形再加上极强的耐磨性,成为装修时窗户台面的不二选择。
但小小的一块窗台石,在选择时,我们还是需要一些技巧的,搭配对了,装修出来的效果才更加好看。

一、颜色
尽管用大理石来制作窗台石,颜色选择性不是很多,但搭配也是非常关键。选择不好,只会给室内效果减分。
装修者可以按照房门的颜色来搭配窗户台面大理石。但是像有些红木门,大理石可没有同样的色调,可以选择同色系的大理石。

二、风格
根据装修风格来选择,在现代简约一些装修风格里,选择白色,米白色,灰色的窗台石不会错。美式、欧式风格不妨参考一下米黄色或者深、浅咖网。
实在不会选择,就都选择用米白色或米黄色,经典款的颜色,百搭也不会错。当然,如果室内铺木地板,可以选择与木地板接近的色系。
三、材质
大理石也有材质之分,就是人造石或天然石。天然的石材更加有质感、硬度更佳,人造石造价也相对较低,根据室内装修风格选择搭配。

四、造型
窗台大理石可不只是一块普通的平面,它也是有造型的,几乎所有的窗台大理石,会做成一个“7”字型的形状,飘窗除外。
也就是大理石侧面通常会加4公分的延伸,独特的造型更加贴合于窗户,虽然在装修时可以将窗台大理石做得更宽一些,方便摆放东西,但并不是越宽越好,要有足够的支撑点才更加安全耐用,恰到好处的加宽实属完美。



飘窗大理石安装的方法

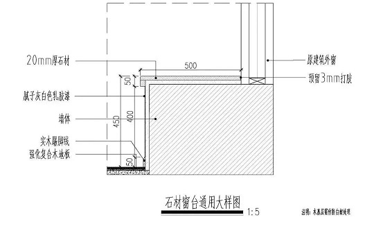
石材窗台通用大样图
石材的材质可以作为窗台板的首选,石材窗台板的优点是颜色很漂亮、纹理多样,窗台的面可防溅落的雨水。

窗台石的安装
● 要对窗台进行找平,将杂质清理干净;
● 测量窗台尺寸,进行耳朵切割;
● 将窗台抹上腻子,腻子不可过多,会挤压出来,也不能过少,会留有缝隙;
● 将窗台石放上去,来回晃动,保证腻子均匀、平整;
● 将缝隙打上玻璃胶,注意窗台石下面与墙壁的缝隙也打上玻璃胶。
施工准备:材料和构配件
1、大理石窗台板制作材料
石材窗台板、大理石窗台板、暖气罩制作材料的品种、材质、颜色应按设计来进行选用,安装固定一般用角钢或扁钢做托架或挂架;大理石窗台板的构造一般直接装在窗下墙须面,用砂浆或细石混凝土稳固。

铺窗台大理石一定要在刮墙漆前施工,这样更加方便修补缝隙,也避免了施工时将墙面给弄脏。当然最重要的还是在施工时一定要保持台面的平整度,不要内低外高,两端高低各不同,施工时可以用水平仪测量,尽量减少这种犯错。
有些窗户刚好有个框架,铺上大理石后有半公分的误差高度,在这个时候,我建议台面大理石加高,与窗户框架齐平,更加方便摆放东西,小细节更能体现出装修的重要性。
2、主要机具
电动机具、电焊机、电动锯石机、手电钻。手用工具:大刨子、小刨子、小锯、锤子、割角尺、橡皮锤、靠尺板、20号铅丝和小线、铁水平尺、盒尺、螺丝刀。
3、作业条件
安装大理石窗台板的窗下墙,在结构施工时应该要根据选用窗台板的品种,预埋木砖或铁件。窗台板长超过1500mm时,除靠窗口两端下木砖或铁件外,中间应每500mm间距增3理水砖或铁件;跨空窗台板应按设计要求的构造设固定支架。
4、操作工艺
工艺流程:定位与划线→检查预埋件→支架安装→窗台板安装、定位与划线:根据设计要求的窗下框进行标高、位置,划窗台板的标高、位置线、检查预埋件:找位与划线后,检查窗台板安装位置的预埋件,是否符合设计与安装的连接构造要求,如有误差应进行修正。
5、支架安装
构造上需要设窗台板支架的,安装前应核对固定支架的预埋件,进行确认和标高、位置等无误后,根据相关的设计构造在进行支架的安装。大理石窗台板安装:按设计要求来找好它的位置,再进行预装,对于标高、位置、出墙尺寸等都必须要符合要求,接缝平顺严密,固定件无误后,按其构造的固定方式正式固定安装。
关于飘窗大理石什么颜色好跟怎么安装,相信大家心中应该也有了定夺了吧,现在飘窗得到很大的认可,在众多的建筑物都也都慢慢的就行起来,它现在已经成为人们生活中常见的一种设计,而很多人在装修飘窗的时候会选择大理石进行装修。

大理石窗台的做法
做法1:
窗台石可以做磨边收口,大理石窗台可以比实际测量的尺寸突出5mm~80mm,打磨好收口就不容易刮手,这样收口就比较简单美观。
做法2:
如果家里是大飘窗的话,窗台石可以做加厚下挂边收口,既保证美观,也对墙体起到保护作用。
做法3:
大理石窗台左右侧只要是窗框没有直接抵靠在转角的墙上,我们一般都会加“耳朵”,具体做法是宽度比基础宽度加30mm,长度往外侧加50mm。

石材窗台注意事项
1、多块拼接窗台板不平、不直:
加工窗台板长、宽超偏差,厚度不一致。施工时应注意同规格在同部位使用。一定要先检查基础是否平整,尽量用装修用的大芯板找平后再铺设大理石。
2、窗台大理石铺设需要有垫层:
上方一定要有不低于1.5公分厚的箱体板垫层;台面下挡水一定要加双层大理石,且要粘接牢固、均匀,粘接面平整,满涂粘接胶,以增强台面强度,防止断裂;温度较低时,为防止局部升温迸裂,不要在一个地方持续打磨。
3、窗台板插不进窗楼下的帽头槽内:
施工前应检查窗台板安装的条件,施工时应坚持预装,符合要求后进行固定。
4、窗台板底垫不实:
捻灰不严、窗台板找平条标高不一致、不平;施工中认真做每道工序,找平,垫实、捻严、固定牢靠。
5、隐藏边角:
边角处要隐藏好,做好收边工作,不要留出尖锐直角,避免日常磕碰受伤。
6、提前预留:
窗台石耳朵部分,要超出墙壁3㎝左右,两边长度也要留出3㎝左右,这样既能保证美观性,在后期也能更好地收边。







