行业动态
除了浴室石材的拉槽,这里还有你不可不知的石材拉槽工艺
- 作者:
- 发布时间:2026-02-08 16:06:06
- 点击:
石材拉槽板加工工艺流程

欧式的建筑已经越来越成为人们喜欢的主流风格, 无论是罗马圆柱、吧台、花槽、卫生间还是厅堂方柱,拉槽工艺都能够得以体现。
然而拉槽的方式或精度也决定着装饰的效果与美观, 此文仅对石材拉槽平面板进行讨论。

01 操作工职责
1、深加工车间机床操作员严格按照图纸选择配套锣轮,严格按图纸尺寸造型, 最大程度减少尺寸误差,确保加工精度,并使有拼接关系的产品槽位能够拼接的上。
2、 机床操作员对产品进行首件检验, 并主动通知当班质检人员进行复检, 得到质检人员的认可后方可进行批量性加工。
3、质检员负责对产品的最终检验和对产品的试拼工作。
4、干磨员工负责对造型误差的产品进行修磨。
5、水磨员工在打磨抛光的过程中要控制打磨抛光的质量, 确保槽在打磨抛光过程中不变形、 槽间距的直线度、间距一致。

02加工流程
桥切切板
1、桥切选择板面符合加工质量要求的板材切板进入立体工序拉槽。材料厚度不能薄 于 1mm 偏差, 避免拉槽后而导致底部强度不够而出现断裂;出现板材偏薄而使拉槽的深度 太浅。也不可偏厚大于 1mm, 避免因厚度问题引来相关质量投诉。见下图。

2、对于规格小于 500 以下且有拼接关系的拉槽板, 桥切必须合料切板,拉完槽、水磨抛光 完成为优等品后再行分切, 避免桥切机(仿形机等拉槽设备) 因精度问题而造成槽与槽之间拼接 不上, 或因为水磨人为因素造成变形、勾头等而造成槽与槽之间拼接不上。见下图:

对于这种订单,桥切应该切料 :
1500(1000+200+200+余量) *302*16. 5 到立体整件拉槽,再行分切、背倒,这样可以避免因槽拉的不一致导致拼接不上。

立体开槽
1、 非通槽的加工:
对于非通槽而言, 一般没有拼接关系, 因此严格按照图纸加工即可, 选择锣轮必须根据图 纸选择, 在审单时查看要造型的槽车间是否有现成锣轮。如没有,与产销办沟通是否按最接 近的锣轮加工。如可以, 则需要待更改图纸下发后车间再加工。

一般锣轮为:
圆形锣轮(直径 mm) :10、 15、 20、 30、 50
方形锣轮(直径 mm) :10、 15、 20、 25、 30、 40、 60、 80、 90
2、通槽的加工:
拉丝面的加工:
Ⅰ:拉丝面的槽宽一般就是刀片的厚度, 在 4-5mm 之间, 通常是不需要抛光的(除非客户 有需求, 价位有调整) 。
由于拉丝面的槽非常之多, 如果一条槽出现误差哪怕仅为 0. 1mm, 那么 50 条槽的累计误差为 5mm, 错位现象就十分严重了, 因此加工拉丝面的时候 一定要注意拼接起来进行加工。

Ⅱ :使用拉丝面成型刀加工:
将多个槽合在一起, 设计拉丝面成型刀。用拉丝面成型刀加工可以提高拉槽的加工精 度。减少拉丝面的偏差。

此类拉丝面产销协要求客户做标准 5*5 的拉槽, 以后车间只按这个标准加工。
Ⅲ:此类槽的加工, 依据加工宽度制作标准的钢模板, 加工过程中, 每拉 5 条槽, 操作工 要用标准钢模板检查。当发现所拉的槽与标准模板偏差大于 1mm 时, 重新调整槽间距, 纠正加工偏差, 使加工误差符合加工图纸要求。


如果拉槽板的宽度太宽, 制作整体的的模板太浪费, 可以只制作一半宽度的模板。
Ⅳ:合料加工或按拼接方式加工的拉槽板分件或分开后按拼接顺序编号。
举 例
某工程订单需要 3400*210*16. 5 的拉丝面, 桥切切料 3000 长和 400 长各一件,由于槽位比较多且需要试拼, 必须要做到 0 误差, 否则累计误差将会非常大, 拉槽时必须将两块板试拼起来后再行拉槽, 如此方可保证一致。

此类拉丝面板加工时需要注意的是, 拼接加工的规格如果超过了机台面, 则无法加工。
某工程订单 5500*3400 规格的拉槽板,因规格太大, 无法拼接起来拉槽, 导致出现累计误差而客户进行投诉。因此桥切机在加工超过工作台尺寸的拉槽板前 需要与产销协沟通如要加工这么多槽的拉槽板, 可能会有 2mm 左右的误差, 待产销协回复客户同意之后才能加工。

操作工在加工时, 一旦发现槽与标准尺寸或标准模板误差时应立 即停止加工, 重新对刀,消除或减小误差, 确保拉槽产品的质量。
3、普通方槽的打磨抛光
与拉丝面一样,只是槽稍微宽一些, 槽内需要打磨抛光, 水磨工序在抛光时不能将槽间 距磨大或将槽口磨歪, 台阶磨圆、 磨变形。

这类拉槽板在打磨抛光时, 最好不要用电动工 具打磨抛光, 用手工擦砂纸或用砂纸包裹木条、 石条的方法打磨抛光。


4、圆弧槽的加工
圆弧槽的加工工艺相对于拉丝面和方槽来说要简单一些, 关键 是要选准锣轮, 桥切切板时将长度小于 500 合料切板, 不需要背倒的拉槽板要先水磨抛光后再分件, 避免拉槽板的边缘部分磨变形。如果需要背倒, 先背倒, 然后水磨抛光, 最后分件。

举 例
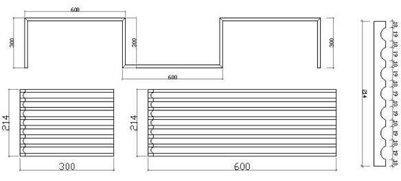
某订单需要如下规格的拉槽板, 桥切可连体开料,也可分开开料 600 长 3 件, 300 长 4 件, 立体桥切将 7 片板拼接起来后再行拉槽, 再倒边, 最后抛光, 抛光时也可以拼接起来进行抛光

在加工拉槽板的过程中,车间排产员需优化图纸,作出合理的开料方案给桥切, 操作工拉槽时必须严格按排产图纸加工,对于不清楚、 模棱两可的图纸必须进行反馈,水磨工也需要拼接抛光, 减少磨变形的现象, 拉槽工艺才能得到优化, 精益生产才能得到体现。

03产品检验
1、 槽间距的检验
依据加工单上的尺寸检验槽间距的加工误差。检验标准:±1。如果偏差超过标准时, 必须按拼接图修磨,使之圆滑、顺畅修磨的长度要大于 1000 以上的长。

2、凡有拼关系的拉槽板, 检验员必须按加工单上的安装图检验拼口处的加工误差, 并检查拼接编号的正确性。




- 上一篇:浅谈天然家装石材的三个质量标准
- 下一篇:挡水条选天然石材来做一定没错!
