行业动态
石材装饰线脚工艺介绍
- 作者:
- 发布时间:2026-02-08 16:05:04
- 点击:

相信大家都遇到过各种造型叠级的花池、柱子
特别是欧式的
是不是看上去很复杂
其实也就是装饰线脚而已
装饰线脚工艺在园林景观中比较常见
常见做法都有哪些?
一起来看看吧
01 装饰线脚工艺之石材定制、拼贴

定制石材:欧式风格用的多,层次感强,比较大气,接缝少,施工方便,但是造价高。(室外要满足最薄处不少于20厚)
拼贴:常见的做法,造型不复杂则能省则省,拼贴做法更便宜。高度大于4米需干挂。
02 在景观中的应用

▲定制石材压顶

▲石材拼接
03 施工图做法
例1:
当你要画这种复杂造型的结构时候会不会手足无措,别着急,慢慢来!

第一步
以定制石材最薄处拉构造线,偏移20,满足室外石材最薄规格。

第二步
大致划分为了四块石材,但是不一定是对的。第一块石材就做不出来,尖角易爆。

第三步
调整无法做出的石材,满足其能施工的要求。石材压石材10公分就够了,为了更稳定压20。

第四步
画结构层,水泥砂浆超过50,结构需进一步调整。

第五步
调整至合理就行啦!石材厚大于30需使用插销,保证其饰面不掉落。

当然,如果金主爸爸有钱,完全可以全部整石定制,不过线脚工艺复杂,插销固定不了的话需要用干挂,成本高,所以不建议此做法。(毕竟我们画施工图的原则是在保证其结构稳定的情况下,能省则省!)

例2:
同样还有很多这种样式,可以多多动手练习一下。


例3:

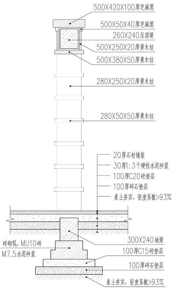
▲树池
同样以满足石材最薄处进行划分,不同面层不一样,荔枝面25厚,根据实际情况。

▲划分
此做法压顶石材较薄,凸起石材位置尴尬,使用不了插销,没有足够的稳定性,时间长后容易掉落,所以此做法树池不坐人的话可以用。坐人的话还是换下一种吧。

将压顶换成这样一整块就完美解决了。(结构注意砖砌体的模数)

例四:

▲一面石材拼贴的景墙
先画出底平面图,景墙为单边脚结构,通过构造柱、压顶梁、地梁使其成框形保证其稳固性。

▲模型示意

▲景墙底平面图
根据其石材规格调整窗框,使其对缝,保证美观性。

▲景墙正立面图
景墙的剖面也不复杂,没有复杂的装饰线脚。

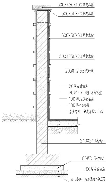
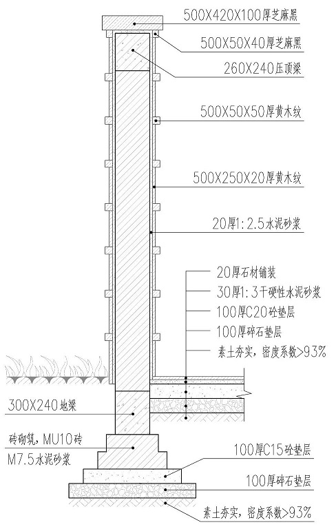
▲1-1剖面图

▲2-2剖面图
值得注意的预制钢混梁再次出现,之前小编在干挂工艺中提到过这个问题,窗框上砌砖需要梁承重。

▲3-3剖面图

▲4-4剖面图
- 上一篇:装修中的主色调,哪种颜色的大理石最受欢迎?
- 下一篇:没有不好的石材,只有不好的设计
