行业动态
园林广场常用石材坐凳都有哪些?
- 作者:
- 发布时间:2026-02-08 13:07:01
- 点击:

园林不仅具有美感更应赋予实际的体验感才是成功的设计。园林景观设计中坐凳能提供给人休息、聊天的公共设施,坐凳的设置地点要结合实际周边空间来考虑,使得园林环境中能产生各种趣味性和功能性。


园林中坐凳是重要的景观,在设计中扮演着重要的景观元素和角色,这就需要我们了解做的作用才能更好的应用到设计中。
石材坐凳


01按照形状分类:
方形:形状规则简易



圆形
一般作为种植池和坐凳两个功能相结合


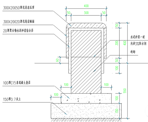
▲ 树池平面图

▲ 树池剖面图
弧形
具有线条美感


▲ 弧形坐凳平面图


▲ 弧形坐凳立面图

▲ 弧形坐凳剖面图
异型坐凳
形状特别吸引游人的目光

▲ 标准长椅模块
文化长廊


▲ 文化长廊坐凳立面图

02石凳的功能性
1、休息功能:
为行走的游人提供短暂的休憩空间

2、观赏功能:
形态各异的造型和材质布置在园区中能成为一个景观节点

3、保护作用:
可以把空间围合也能保护树木一般作为种植池和坐凳相结合


- 上一篇:40种设计师偏爱的红色石材
- 下一篇:白玉兰大理石的魅力,无人能抵挡的住
