行业动态
石材饰面隐形式地漏,效果不但美观还更整体
- 作者:
- 发布时间:2026-02-08 13:05:56
- 点击:

石材隐藏式地漏
在审美要求不断提高的今天
就连贴瓷砖也更讲求美观性
甚至一些人为了让石材的效果更好
还特意去做无缝铺贴..
虽然铺贴的手艺
我们可以尽量做到完美
但是安上地漏后效果
就又大打折扣了

地漏的安装不但给地面造成一个凹洞看起来很不美观,而且时间长了积聚灰尘打理起来也十分费事。

所以针对这个情况一种隐形地漏现在开始流行起来,它不但具有隐形效果而且排水快效果更上档次。
说起这种地漏也许有人对它还并不了解。
跟传统的老式地漏不同,这种地漏的表面可以被石材遮盖住。
由于它的表层部分有一个凹槽可以镶嵌石材,所以在安装完成以后我们就会看到地漏部分与周围的石材完美的融合在一起,效果不但美观还更整体

另外作为一个地漏最让人关心的就是它的排水问题了。
一般的传统地漏由于接水面积比较小所以排水速度一般,甚至需要切割周围石材做倾斜处理加快它的排水速度。
不过这种地漏却不同,由于它的接水面积比较大所以能更迅速的排出地表积水,使家里的地面可以一直保持相对干爽。

老式的地漏如果没有水封常常会有一些异味反上来,而这种地漏却设计的十分巧妙。

它的内部有一个塑料盖板,当排水时水流的力量可以冲开盖板流进下水口。而当积水排完这个盖板又可以自动弹回原状,这样内部就形成了一个封闭状态。不仅能防止臭气倒灌还能防止一些爬虫进入室内。


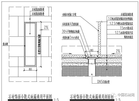
石材饰面隐形式地漏
石材饰面隐形式地漏是将面板反过来,安装上同尺寸的石材,如此一来,就像是隐身于空间的地面上。

|石材饰面隐藏式地漏施工图 |





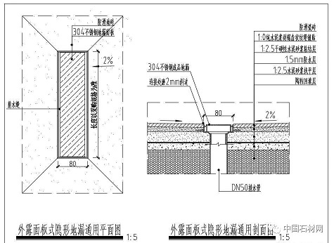
外露面板式隐形地漏
由不锈钢底座和盖板组成,排水方式是从旁边的缝隙排入管道。优点:价格适中、外观时尚,耐用。

| 外露面板式地漏施工图 |



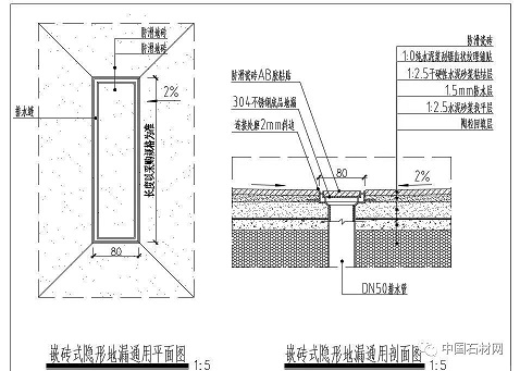
嵌砖式隐形式地漏
| 嵌砖式隐形地漏施工图 |



