行业动态
园路花岗岩的铺贴样式及说明
- 作者:
- 发布时间:2026-02-08 11:06:22
- 点击:
园路的形式:
主干道:联系全园,必须考虑通行、生产、救护、消防、游览的需要。
次干道:沟通各景点、建筑,通轻型车辆。
休闲小径、健康步道:健康步道是近年来最为流行的足底按摩健身方式。通过行走卵石路上按摩足底穴位达到健身保健的目的,也成为公园中的一景。
样式1
材质说明:红色广场砖,黑色光面花岗岩,浅色毛面花岗岩

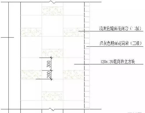
样式2
材质说明:红色广场砖,浅色花岗岩,深色花岗岩

样式3
材质说明::红色广场砖,白色广场砖

样式4
材质说明:300*600石材,300*450鹅卵石

样式5
材质说明:500X500X20(车行道40)红色烧面花岗岩,缝宽8,1:1水泥砂浆勾,100X100X20(车行道40)黑色烧面花岗岩,缝宽8,1:1水泥砂浆勾缝

样式6
材质说明:230x115x20青石板铺装,缝宽10,1:1水泥砂浆勾缝,铺装角度见铺装总图,200x200x20黑石板收边,缝宽10,1:1水泥砂浆勾缝

样式7
材质说明:300*600石板,300x300石板

样式8
材质说明:300*600石板

样式9
材质说明:600*600石材,300*300鹅卵石

样式10
材质说明:600*600石材,300*300鹅卵石

样式11
材质说明:20厚光面芝麻白花岗石贴面,20厚毛面芝麻白花岗石贴面

样式12
材质说明:20厚光面芝麻白花岗石贴面,20厚毛面芝麻白花岗石贴面

样式13
材质说明:500X500火烧面光面芝麻白间隔铺装,300X600光面蒙古黑,耐火砖横铺,300X600x50自然面青石板,嵌200宽草缝

样式14
材质说明:120x300x1100花岗岩,30厚将军红花岗岩,白色互锁砖,浅红色互锁砖

树池样式15
材质说明:白色互锁砖,浅红色互锁砖

样式16
材质说明:完形碎拼雪域红花岗石10宽通缝,雨花石铺地,海沧蓝花岗石磨光

样式17
材质说明:20厚毛面芝麻白花岗石贴面,20厚毛面芝麻白花岗石贴面,20厚光面芝麻白花岗石贴面

样式18
材质说明:500X500青石板,双柱280X100,鹅卵石

样式19
材质说明:200x400花岗石,黑色、棕色、米黄色随机搭配,缘石(平道牙)棕红色花岗石,300x900花岗石青灰色毛面,水刷石100宽(米白石子)

样式20
材质说明:缘石(平道牙)棕红色花岗石,米黄色花岗石,花岗石70%墨色,30%棕红色,杂色雨花石

样式21
材质说明:30侧毛面芝麻灰花岗岩,30厚毛面蒙古黑花岗岩,30厚毛面芝麻灰花岗岩,蓝色鹅卵石

样式22
材质说明:200X200栏杆立柱,200X200X30杭灰烧毛花岗石,600X600X30芝麻白烧毛花岗石,200X600芝麻灰花岗石,600X600X30粉红烧毛花岗岩,400X600X30粉红烧毛花岗岩,100X200X30花岗岩侧石

样式23

样式24
材质说明:600x400深灰花岗岩,300x400深灰花岗岩,800x460深灰花岗岩,600x400深灰花岗岩

样式25
材质说明:青石条,鹅卵石

样式26
材质说明:毛面石材和光面石材

样式27
材质说明:300*300,300*900毛面花岗岩石材

样式28
材质说明:花岗岩冰裂纹

样式29

样式30

样式31

样式32

样式33

样式34
材质说明:青石板,鹅卵石

样式35
材质说明:中间为人字型或者麦穗型

样式36

样式37
材质说明:鹅卵石,工字缝石板

样式38
材质说明:石材乱拼

样式39

样式40

样式41

更多方案:
A 方案使用石材参考规格:100*100,100*200
A-1 黑火烧面(100*200),灰光面(100*100)

A-2 红光面(100*100,100*200) 灰火烧面(100*100,100*200)

B方案使用石材参考规格:200*200,400*400
B-1 红火烧面(200*200,400*400),灰光面(200*200,400*400)

B-2 红光面(400*400),深灰光面(200*200),浅灰火烧面(200*200)

B-3 红光面(400*400),灰光面(200*200,400*400)

B-4 红光面(400*400), 浅红光面(200*200),灰火烧面(200*200)

B-5 红荔枝面(400*400),红光面(200*200),红荔枝面(200*200)

C 方案使用石材参考规格:100*200,100*300,200*200,300*300
C-1 红光面(100*200,200*200),灰光面(100*200,200*200)

C-2 红荔枝面(100*300,300*300) 浅红荔枝面(100*300,300*300)

C-3 红光面(300*300),灰火烧面(100*300)

D方案使用石材参考规格:100*100,100*200,200*200
D-1 红光面(100*100,100*200,200*200),红荔枝面(200*200)

D-2 红光面(100*100,100*200,200*200),灰光面(100*100,100*200)

D-3 红光面(100*100,100*200,200*200) 红荔枝面(100*100,100*200,200*200)

D-4枫叶红光面(100*100,100*200,200*200),芝麻白光面(100*200,200*200)

D-5 红光面(100*100,200*200),红荔枝面(100*200)

E方案使用石材参考规格:100*100,200*200,200*300
E-1 红荔枝面(100*100,200*300),黑(100*100,200*200)

E-2 红光面(100*100,200*300),灰光面(100*100,200*200)

E-3 红光面(100*100,100*200,200*300),红荔枝面(100*100,100*200,200*300)

F方案使用石材参考规格:100*100,200*200
F-1 红光面(100*100,200*200),白光面(100*100,200*200)

