行业动态
景墙石材干挂施工中遇到的一些问题及解决方式
- 作者:
- 发布时间:2026-02-08 04:04:22
- 点击:

本篇讲述的石材干挂仅适用于景观墙体 不宜套用幕墙规范
你一定在景墙石材干挂施工中遇到过这些问题?
石材自重大,导致脱落、孔洞易腐蚀、不规则碎拼材料干挂施工困难、面层破碎或剥离……本文针对以上问题,提供可行的改进方法和防治措施。
近年来,景墙石材干挂工艺以其独特的艺术感、时代感和施工优势,被广泛应用。

1、可以有效避免传统湿贴工艺出现的板材空鼓、开裂、脱落等现象,提高了建筑物的安全性和耐久性;
2、有效防止灌浆中盐碱等色素对石材的渗透污染,避免石材表面变色、返碱;
3、受气候变化影响小,避免石材因热胀冷缩导致的脱落,减少维修费用;
4、各个板材独立受力、安装和更换,施工灵活且方便,施工效率高。


1、石材自重大,存在脱落问题
● 测试柔性结构胶与钢板的附着力
采用基层钢板打孔的方式来实现溢胶成勾法点挂不规则景墙材料技术,确保饰面材料与钢板之间的附着力。

● 背面防剥落处理
采用多角度斜角切割开槽,使材料的背面形成凹槽,结构胶填满凹型槽时形成一个扭矩挂钩形式,来增加结构胶和不规则面层材料的粘结力。

● 孔洞易腐蚀
考虑到薄钢板孔洞易腐蚀,可采用以下方式进行防护处理:

● 不规则碎拼材料干挂施工难

A. 在原建筑结构上钻孔安装膨胀螺栓,然后将龙骨(角钢或方钢)固定在墙面上。根据需求和力学计算确定其安装密度和深度形成钢骨架。

B. 将3~5mm镀锌薄钢板冲压成蜂窝板,根据现场实际情况确定孔洞的大小和密度。一般根据不规则面层装饰材料的平均大小,来确定最小面积材料,至少应覆盖5个以上的空洞为宜,以确保不规则面层装饰材料的安装牢固度。

C . 现场使用不锈钢钻尾螺丝,将镀锌蜂窝钢板固定在焊接好的钢骨架上,使用柔性结构胶涂抹在不规则面层装饰材料上。粘贴的位置需要对准用力压下,待部分柔性结构胶从镀锌蜂窝钢板的孔洞中溢出即可。

D. 不规则面层装饰材料安装完成后,待柔性结构胶风干凝固后,使用钻尾螺丝对部分不规则面层装饰材料进行二次加固,产生的表面孔洞使用调色水泥进行修补。

E. 使用参胶水泥经过调色后,对不规则面层装饰材料之间缝隙进行嵌缝处理。
4、面层破碎或剥离问题
深化设计,调整干挂结构材料,用物理锚栓的方式,将结构材料固定在不规则材料室内外幕墙干挂系统基层结构上。通过分层局部表面隐蔽锚栓的固定方式,将面层材料与基层钢板锚固,防止面层材料的破碎与下垂。


1、背栓式
最常用的石材干挂方式。工艺做法可参见图集15J02-1-J7页
优势:
a、板材之间独立受力,更换方便;
b、连接可靠,具有较高的抗震能力;
C、可准确控制石材与孔底的间距;
d、工厂加工,现场作业量小
劣势:
开孔拓孔工艺复杂,对石材材质要求高。




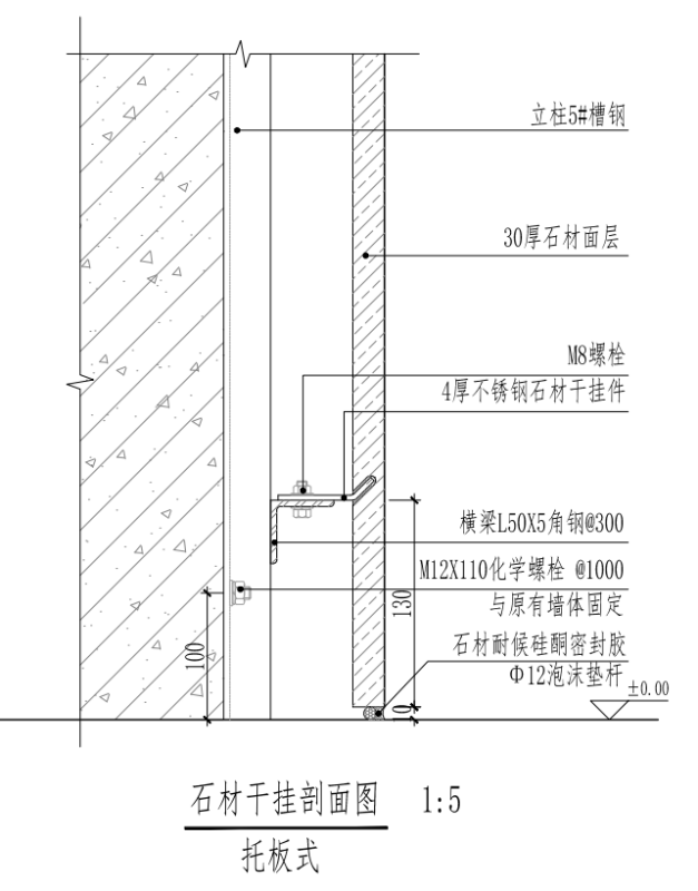
2、托板式
优势:
工艺简单,无需特殊工具,经济方便
劣势:
现场作业,需注胶调整,石材面板不宜拆换。



3、开槽式
优势:
工艺简单,承载力大,无需特殊工具。
劣势:
开槽作业量大,石材面板不宜拆换。面板不宜拆换。


- 上一篇:如何正确的对待石材防水防护与防滑的处理?
- 下一篇:石材厂工程部工作流程概要
