行业动态
超大规格板的对角线、垂直度可以偏差多少?
- 作者:
- 发布时间:2026-02-07 23:01:14
- 点击:
近日,有朋友请教笔者:当规格板的长度(高度)>2500mm时,对角线的偏差标准为多少?有没有相应的国家标准?
答复朋友:有国家标准,但国家标准很笼统,没有更细分的标准,不能套用。问朋友客户的要求是多少?
朋友说:1mm以内。
答复朋友:客户的要求高,但如果你公司的桥切机精度高的话,没问题的。
朋友说如果该订单承接下来了的话 ,公司的桥切机要全部换了。
关于朋友提出的这个问题要具体情况具体分析。
请看GB/T 19766-2005 5.4角度允许公差标准:

对一等品:当板材的长度L>400mm时,允许公差为0.4mm;对于二等品,当板材的长度L>400mm时,允许公差为0.5mm。
至于L>1000mm,甚至更长时,允许公差多少呢?没有明确的标准了?
请看《建筑装饰室内石材工程技术规程(中)》关于普型板加工尺寸偏差中对普型板角度偏差的标准:
对A类:当板材的长度L>400mm时,允许公差为0.4mm呢?对B类,:当板材的长度L>400mm时,允许公差为0.6mm
至于L>1000mm,甚至更长时,允许公差多少呢?没有明确的标准了?
对比上面两个标准,不难看出,只给出了当板材的长度L>400mm时情况下的偏差标准,至于L最大极限是多少?没有明确,这种情况下笔者认为可能会误导客户,无论L多大的情况下,标准是一样的。朋友的客户就是这么要求的。
至于对角线的偏差从没看到过有关的国家标准。
从笔者的观点看,随着L的增大,角度允许公差应该适当增加。可以从基本的数学知识及下面的图可以阐述。

#01 当边长偏差0.4mm时,对角线偏差
以几个图形说明在L>400mm时,对角线的偏差的大小。
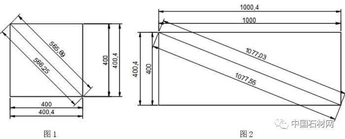
图1的情况下,对角线偏差为0.56mm;
图2的情况下,对角线偏差为0.52mm;
图3的情况下,对角线偏差为0.57mm;
图4的情况下,对角线偏差为0.5mm;


#02 当长、宽偏差为1mm时,对角线偏差
图5的情况下,对角线偏差为1.41mm;
图6的情况下,对角线偏差为1.3mm;
图7的情况下,对角线偏差为1.3mm;


#03 当对角线偏差为1mm时,边长偏差
在图8的情况下,边长的偏差0.71mm;
在图9的情况下,长度方向的偏差0.93mm,宽度方向偏差为0.37mm;
在图10的情况下,长度方向的偏差0.71mm,宽度方向偏差为0.71mm;
在图11的情况下,长度方向的偏差0.89mm;宽度方向偏差为0.45mm;
在图12的情况下,长度方向的偏差0.95mm;宽度方向偏差为0.32mm;

#04 角度偏差计算
图10为普型板角度偏差的计算图,在知道某边长的偏差δ的情况下可以计算出角度的偏差值。
β=arctgδ/L。

图1中的角度偏差=arctg0.4/400=0.054°;图2中的角度偏差=arctg0.4/1000=0.02°;图3中的角度偏差=arctg0.4/1000=0.02°;图4中的角度偏差=arctg0.4/3000=0.0073°;图5中的角度偏差=arctg1/400=0.11°;图6中的角度偏差=arctg1/1000=0.05°;图7中的角度偏差=arctg1/2500=0.02°;图8中的角度偏差=arctg0.71/400=0.09°图9中的角度偏差=arctg0.93/400=0.11°;图10中的角度偏差=arctg0.71/1000=0.04°图11中的角度偏差=arctg0.89/1000=0.04°;图12中的角度偏差=arctg0.95/1000=0.04°;
从角度偏差计算看,长、宽的0.4mm的偏差对普型板角度影响极小,也就是说只要长、宽的偏差在标准范围几,角度偏差0.1°都不到,根本不影响普型板的垂直度。
#05 结论
从以上数据,日常石材加工中普型板通过检验对角线来判断切板精度的方式没有检验普型板的长、宽方便,检验精度好。

在当边长偏差0.4mm时,对角线偏差的情况下,对比图1~图4与图5~图9知道,当长、宽的偏差在0.4mm时,图1~图4对角线的偏差基本上在0.5mm左右。

在长、宽偏差为1mm时,对角线偏差必定超过1mm,因此普型板的长、宽偏差必须控制<1mm内,否则影响普型板的安装精度,影响施工质量。
如果让对角线延长1mm,普型板的长、宽偏差基本上都超过0.4mm的标准。如果有客户提出普型板的标准对角线偏差不能超过0.5mm时,显然是不合理的标准,通过图1~图4对角线在长、宽偏差的计算值可以判定;对角线偏差在1mm时,虽然长、宽的偏差超过0.4mm的标准,但并不能认为这种普型板为不合格产品,因为标准中L>400mm时,角度偏差在0.4mm,随着普型板长度增长时,0.4mm的标准似乎太严格了,非高精度机床难以保证的。
- 上一篇:石材幕墙的防火构造及安装要求
- 下一篇:地面大理石坑洞修复方法
