行业动态
石材加工图纸设计标准参考
- 作者:
- 发布时间:2026-02-07 22:01:38
- 点击:

为了加强对石材加工图纸设计、编制工作的管理,提高图纸设计、制作质量水平,给生产加工和施工提供准确的依据,并便于加工、施工。
在国家现行有关设计文件规定的基础上,根据行业的特点并在总结多年经验和石材产品加工特点的基础,特对石材加工设计图纸做了后叙方面标准规定,望您能在自身知识面基础上有新的认识和提高。
本标准主要设计图纸篇幅、平立剖图的要求、图示符号及标注尺寸等。
一、图纸要求
1、规定石材加工图一般使用A4图纸(A3图纸一般要严格控制 使用),大于A2幅面的图,除有特殊要求,全部要求拆分成A4或A3图纸。
2、图纸要求清晰美观,细节部分(不能正常识图时)需要做局部放大。一份图纸能用一张图表达的尽量不要用多张图去表达。细节部分一般采用成比例放大(偶倍数)。上述要求均以,加工单复印后,有利于车间看清图纸,看懂图纸为目的,同时降低能耗。
备注:对小工程或较简单的图纸,可采用地面、墙面画在一 张图的表示方法,并推荐采用透视图表示方法。
二、平面布置图
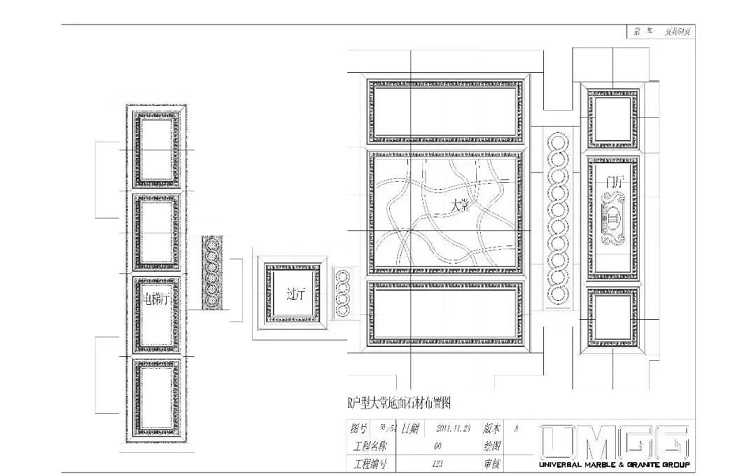
1、石材图纸中必须具备整体平面图,并注明各自部位的详细名称,如入口位置、电梯间、大堂等要表示清楚。

平面布置例图
2、大中型工程和特殊工程必须有平面位置分布图及立面索引图,在图纸上面必须标明各部位的主次位置关系。
3、因为石材特殊性,我们在做图时,必须标明石材纹向要求。

索引图实例
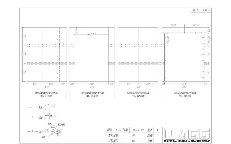
三、立面图要求
1、墙面展开图应与平面图中各标明的序号意义对应,门窗的位置要在图中明确表示出来。
2、墙面展开顺序要依次展开,并按从左至右的顺序,阴阳转交之处需要标明。
3、立面图是承载各种加工信息最多的图纸,图纸中包含加工中的纹向、尺寸、厚度、磨边、材料种类及位置关系等。
4、在石材立面图中,必须标明石材的纹向。

立面图实例含材料,线型磨边,尺寸标注磨边大样、材料种类及位置关系等
四、剖面图要求
1、剖面图分为以下,全剖面、阶梯剖面、局部剖面、半剖面等,对有剖和广西(含石材与其他材料的装配关系)要合理使用剖面图,要求准确清晰的表达出来。
2、剖面图除了采用剖切位置线以外,还需要增设剖视方向线,它与剖切位置线垂直相交,但是不允许相交出头,该剖面图的数字编号应书写在剖切方向同一侧。不论剖切位置线或剖视方向线是水平、铅直或者倾斜位置,其数字编号均一律水平书写。
五、图用符号
1、尺寸标注
a、图中允许有封闭尺寸链,并优先使用。不允许出现需要操作者 手算尺寸(反应在图纸上即为手改尺寸)。标注时,总尺寸、分尺寸要标齐全线尺寸(长度尺寸)。其中需要标明的为:尺寸界线、尺寸线、尺寸起止符号、尺寸数字。
b、标高符号:标高符号以等腰三角形表示,单位以(m)为单位,标注精度应标注到小数点以后第三位。在总平面图上注到小数点以后第二位。
c、零点位置标注为“±0.000”,正数标高标注“+ ”,负标高标注必须冠以“- ”号表示。
2、引出线
a、引出线用细实线,呈水平方向画直线,或者以30度、45度、60度、90度的斜线引出到标注位置厚,改绘水平直线。文字一般标注在水平线上方,索引符号在水平直线末端。
b、同时引用几个意义相同的引出线时,引出线需要相互平行排列。
3、对称符号
a、完成对称的图样,可在对称线上画对称符号,图形只需要画出一般即可表示整个图样。
b、对称符号用点划线表示对称线,并在对称线两端用两端水平的相互平行的短线段。平等短线段在对称线两侧的长度相等。
4、连接符号
a、连接符号以折断线来表示确定连接的部位。
b、折断线两端图样的一侧要用大写的拉丁字母来表示连接编号,两个连接的图样要用相同的字母编号。
5、材料图例
a、材料图例的填充按照通行的国家建筑制图标准规定进行,使用图例应比例适当,间隔均匀,疏密有致,线条细淡,图示正确,不同图例应清晰可辨,不得混淆不清。
b、凡同类材料不同产品使用同一图例时,应以准确的文字说明。
c、 无法绘制填充图例时,应以文字说明。
六、局部放大图和节点详图
1、加工中关键部位、需要重点表达的部位,均会以绘制节点详图来表达。
2、按要求注明详细的造型尺寸,材料组成的放大图,并需要按比例绘制。
3、放大图常用比例有:1:1;1:2;1:5;1:10;1:20;1:50;1:100(石材放大图在加工单中一般采用偶数倍)。
4、图样优先并同意安排在图纸的右下角。
七、标注样式规定
1、标注样式一般采用建筑标记样式,且文字居中的标准标注方法标注。
2、规定所有图中字体统一采用仿宋体,字体倾斜角度取10度,宽度比列取0.7。
3、规定相对于A4图中自提高度在3mm左右(准确在3.333333mm)。
4、规定在A4图纸中,尺寸界线超出尺寸线一般为2mm左右,尺寸界线起点至标注尺寸线之间距离在3-4mm,标注起点至尺寸界线起点之间距离在2mm左右。
5、在所有图纸中,原则上不允许出现手改尺寸。
八、磨边规定
由于石材加工的特殊性,用相对固定的不同线型符号来表示磨边,既清晰,又直观。
1、磨边符号在同一份加工单中,不允许重复,一种符号原则上只能表示同一类型磨边;当同一加工单中有二种相同类型,不同尺寸的磨边时,如同一单中同时出现5*5斜边和10*10的斜边,附有对应符号说明外,同时必须另用磨边大样图明确表示出来。
2、当同一加工单磨边较多时,采用的磨边符号也应尽量合理安排;有磨边符号的每一页都应有相对应的符号说明。
3、同一份加工单中,不能使用二种相近似或者容易混淆的线型的表示方法,例如虚线和点划线等。生产车间严格按照加工单符号及文字说明并对照大样图要求磨边。在同一加工单中规定虚线表示见光边时,页可能是加厚边见光边,但图纸上要有相应的图样表示及文字说明。
