行业动态
关于石材的5种阳角、3种阴角收口
- 作者:
- 发布时间:2026-02-07 22:01:21
- 点击:
【收口】:装修中“收口”也叫“收边”,专业点的叫法是“交接关系处理”;是通过对装饰面的边、角及衔接部分的工艺处理,已达到弥补饰面装修的不足之处,增加装饰效果的目的。收口是装修工程中细部工程的主要一环,能否做好收口关系到装修的最终效果。今天介绍5种阳角3种阴角方式,你都知道吗?
在装修中,转角石材相连形成的夹角,凹进去的是阴角,而凸出来的就是阳角。

阳角
45°斜拼
工艺特点:45°拼角的工艺较为传统、大众使用率高,多用于现代和中式设计。

海棠角
工艺特点:在两块石材进行“45°”磨斜边的基础上,每块“对接边”需倒“直角”,以致两块石材阳角对接时,一般形成“5*5mm工艺凹槽”,俗称“海棠角”。

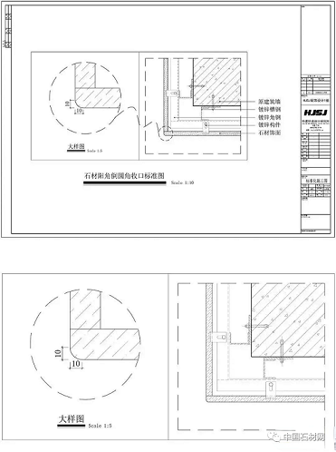
倒圆角
工艺特点:两块石材交接时,需对其中一块石材“阳角端点”,进行“倒圆角”石材磨边处理,设计多用于欧式设计风格及美式风格。

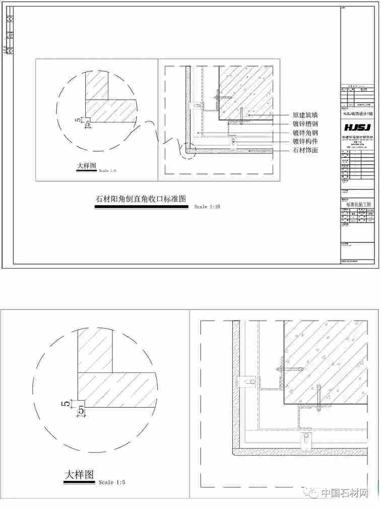
倒直角(5*5拉槽见光角)
工艺特点:两块石材交接时,需对其中一块石材“阳角端点”,进行“倒直角”石材磨边处理,装饰效果简洁、锐利、凹凸有致。

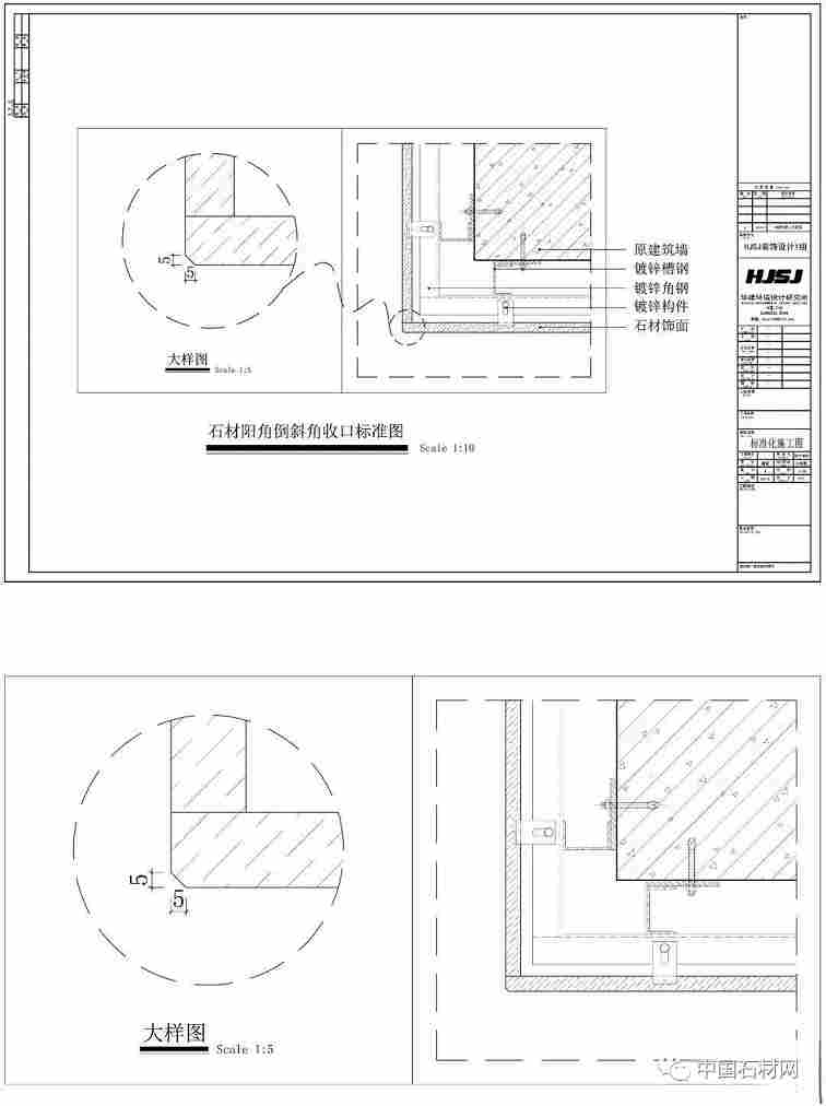
倒斜角
工艺特点:倒斜角,就是将板材的一条边或几条边磨成斜边的一种石材加工工艺。

阴角
直碰
工艺特点:“直碰”适用于各种不同型材的石材、瓷砖等,是一般设计,简约设计,对设计要求不高的项目应用较为广泛的收口形式。

留槽
工艺特点:“留槽”即在某一块石材或瓷砖的“对接角端”一般处理出“5*5mm工艺缝”,适用于对设计有一定艺术审美要求的空间。

45°斜拼
工艺特点:传统、大众使用率高。易受到一定施工技术或其他影响会显现一定的缝隙,影响美观,为了弥补不足,可在“45°斜拼”的基础上打胶美缝,使得缝隙更自然贴切。

