行业动态
石材幕墙的特殊部位设计处理
- 作者:
- 发布时间:2026-02-07 21:03:50
- 点击:
石材幕墙:特殊部位石材一定特殊设计处理
大面积石材幕墙标准节点只需要正确掌握其用材和连接形式,以正确的计算为依据,基本上都能在设计阶段规避掉施工时的风险,而对于一些特殊部位的处理,则更能体现设计师的专业性与全面性。
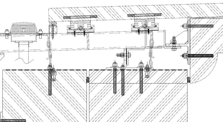
1、檐口外挑石材的处理
在一些别墅类幕墙中,石材线条的运用较为普遍,而石材线条自重较重,且外挑结构面较远,因此危险性较高,在早期幕墙设计并不受重视的时候,一些人肆意得运用简单的斜挂接技术来实现檐口线条、牛腿等自重较重的部位装饰造型,往往引起了线条大面积脱落。因此在这类檐口位置不应以常规的连接技术,而应进行加固处理,采用背栓等工艺进行有效可靠的机械连接。

2、吊顶石材的处理
在一些入口、檐口等位置,涉及到外立面石材与吊顶交接的收口面,往往为了考虑其美观而选用与外立面材料相一致的石材作为吊顶材料,这些部位同样不适合用普通的挂接方式来处理,某工程运用条件来连接吊顶板,最终导致大量吊顶石材的脱落。建议采用背栓系统,必要的话可在石材中部加打一个背栓,然后以钢丝绳连接到龙骨上,一旦石材脱落,钢丝绳可起到缓冲作用,另外在石材背部衬玻璃纤维网,并以环氧树脂胶粘接也能有效防止碎石板的坠落。

3、女儿墙等有排水需要的石材幕墙位置的处理
在生活中我们经常看到这样的情况,大面积的石材在投入使用一两年后就开始出现积灰、发毛、生锈、污染等现象,这固然有胶、连接件等材料劣质引起的,同时,设计时排水的不合理也促使了这种现象的发生。

在设计阶段,利用排水坡度的设计,可以将向外无组织排水设计成向内有组织排水,利用顶板向内倾斜3%的设计,将自然落水向内排放,同时在内侧设置集水槽,将雨水有序排除,避免了长期的渗水造成“流眼泪”现象。
4、墙、柱转角交接位置的处理
个别项目为追求美观,在柱子及墙体的转角收口处采用45度拼接,为施工方便,有些施工单位往往采用粗暴的“一刀切”的方式,直接在石材边部切出一个45度的斜角,由于尖部较薄,极易崩坏,因此在设计时需对对交接的两块板块进行导角导边处理,以防止板边崩坏。

- 上一篇:冬天石材常见的冻融现象,你了解吗?
- 下一篇:石材业内人才懂的“猫腻”行为
