行业动态
别到着火了才后悔 为什么不用石材做外墙
- 作者:
- 发布时间:2026-02-07 20:01:39
- 点击:
在福建晋江发生一起火灾,一栋价值千万的石材别墅,刚刚装修完,工人正在摆放家具的时候,不知何故突然起火,由于火势较猛,迅速窜上三楼,现场火苗从门窗处窜出,滚滚黑烟从别墅里飘上半空,刚刚装修完的一栋别墅,就在大火的摧残之下,变得一片狼藉。
为了灭火,当地消防部门紧急出动了四辆消防车前往救援,火势虽大,万幸的是没有造成人员伤亡,具体财产损失与起火原因正在调查之中。
千万豪宅,还没入住,就被一把大火给烧毁了,这栋别墅的主人不管多有钱,估计心里也会不好受,谁的钱都不是大风刮来的,千万级别的豪宅,装修费用估计也要百万起步,这期火灾损失应该不会太小。还好是用石材装修,没有把整栋房子烧了...

着火了才知道,石材外墙才是最安全可靠的!
2019年4月15日,当地时间下午5点50分左右,巴黎圣母院突发大火。
天然石材救了巴黎圣母院

此次火灾,燃烧的主要是塔尖的木制部分,而经过4个小时的救火之后,幸运的是巴黎圣母院的石材主体结构没有被损害,天然石材穹顶隔离了起火坍塌的木质塔尖,使得整个建筑主体结构得以保留,还能修复!

历经850年的巴黎圣母院,地面、墙、柱都是天然石材建造,被称为“石材的交响曲”!在这样的熊熊烈火下,天然石材的大面积使用很大程度上的决定了建筑的美观性、耐用性、保温性。天然石材以它自带的优势,将巴黎圣母院的主体,挽救于熊熊大火之中。天然石材主体结构依然保存,才使得巴黎圣母院幸免于难。
石材是A级防火材料!
建筑装修材料燃烧性能等级划分为四级:A级,不燃性;B1级,难燃性;B2级,可燃性;B3级,易燃性。
天然石材(包括大理石和花岗石)的燃烧性能属于不燃材料,即A级。不燃烧材料是指对包括充分发生火灾在内的所有火灾阶段都不会做出贡献的建筑材料。石材及各种材料一样,没有消防等级,只有在一定程度下的‘燃烧极限’

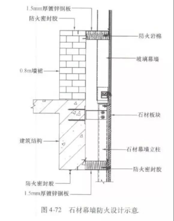
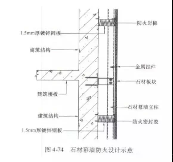
下面就给大家分享一下石材幕墙防火设计节点
当石材幕墙与玻璃幕墙分别安装时,一般玻璃幕墙是为了满足建筑采光要求而设计的,因此玻璃幕墙部位的开始、结束位置都与建筑结构框架有关,因此大多是在建筑结构梁、注部位设计防火构造。
在石材幕墙防火设计时,第一需要沿着建筑采光结构洞口处周边采用防火构造封闭,封闭材料,结构必须符合《建筑设计防火规范》和《高层民用建筑设计防火规范》的要求。
但建筑玻璃幕墙(建筑结构采光)洞口与建筑每层水平标高属于同一平面时,也就是没有高度不低于0.08m的不燃烧体裙墙、耐火极限不低于1.00h时,需要沿着建筑结构梁的高度整体密实封闭(图4-71~图4-75)



当石材幕墙处在建筑实体墙位置时,应该按照示意图所示,在建筑层间楼板附近,靠近石材幕墙横向龙骨位置设置一道火层(图4-73),防火层的厚度不小于100mm,沿着建筑高度每隔3~5层的位置,设置两道防火层(图4-74)。

按照设计示意图所示,在层间高度方向的建筑墙体有敞开洞口,但是又不是建筑采光洞口处应该沿着建筑结构柱高度进行两侧防火封堵(图4-75)。

